CAD频道
CAD图库
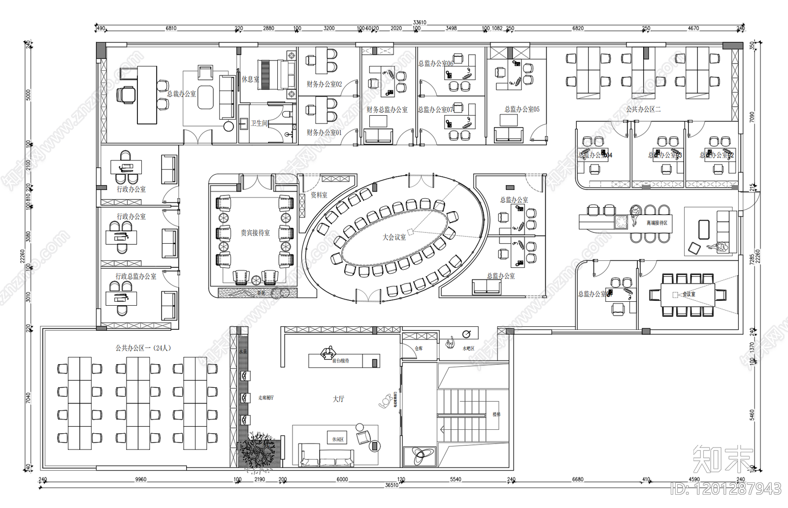
现代整体办公空间 现代办公室 施工图
1/
2
Previous
Next
现代整体办公空间CAD下载
ID: 1201287943
复制
上传作者
大成不设计
上传时间
2025-07-16
文件大小
1.41M
设计风格:
--
CAD版本:
CAD2004
包含文件:
CAD
授权
独家
立即下载
收藏
分享
举报
相关推荐
综合
平面图
工装平面图
景观平面图
规划平面图
其他平面图
小区平面图