CAD频道
CAD图库
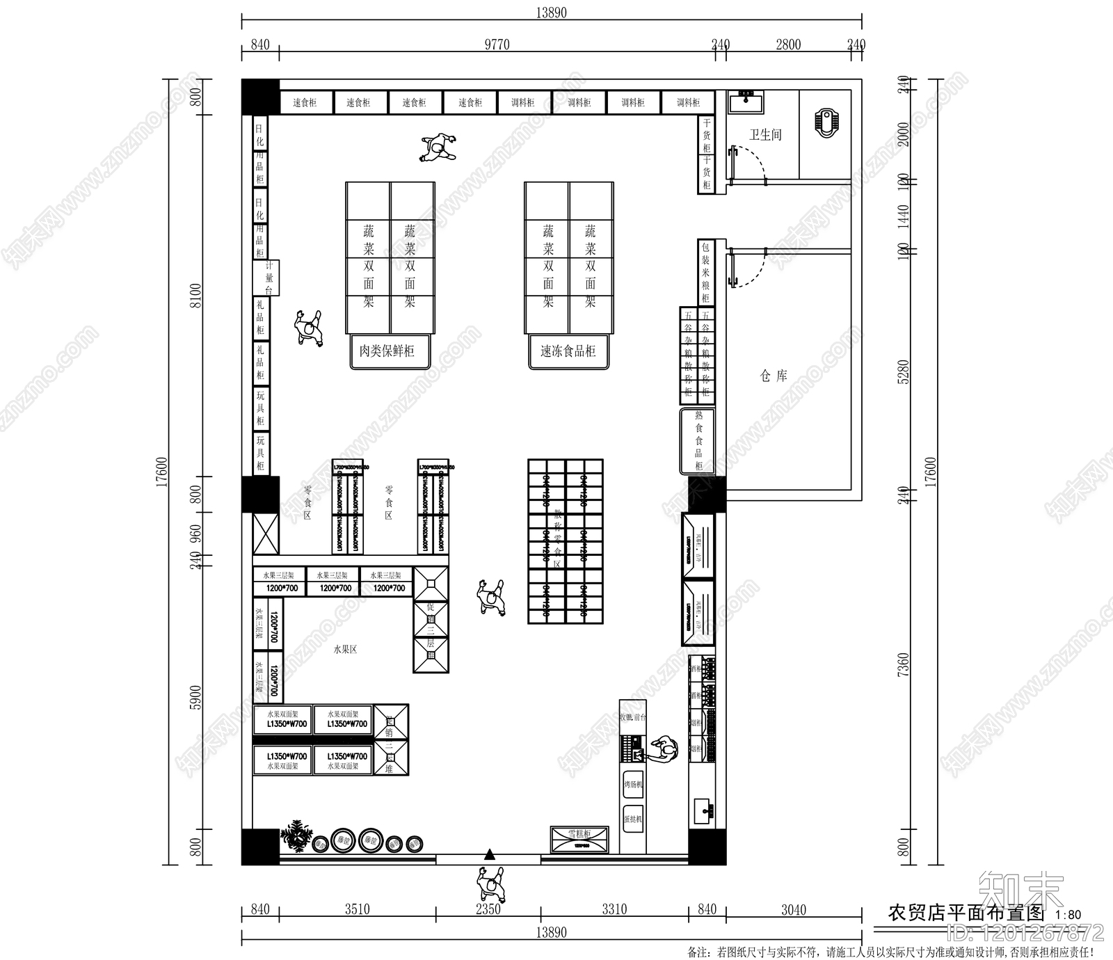
现代极简农贸市场 农贸店 粮油店 生活小超市 平面方案图 施工图
现代极简农贸市场CAD下载
ID: 1201267872
复制
上传作者
RAIN
上传时间
2025-07-15
文件大小
1.78M
设计风格:
--
CAD版本:
CAD2007
包含文件:
CAD
授权
独家
立即下载
收藏
分享
举报
相关推荐
综合
商业空间
农贸市场
售楼处
商场
其他商业空间
超市
服装店
书店
美甲店
珠宝店