1/3


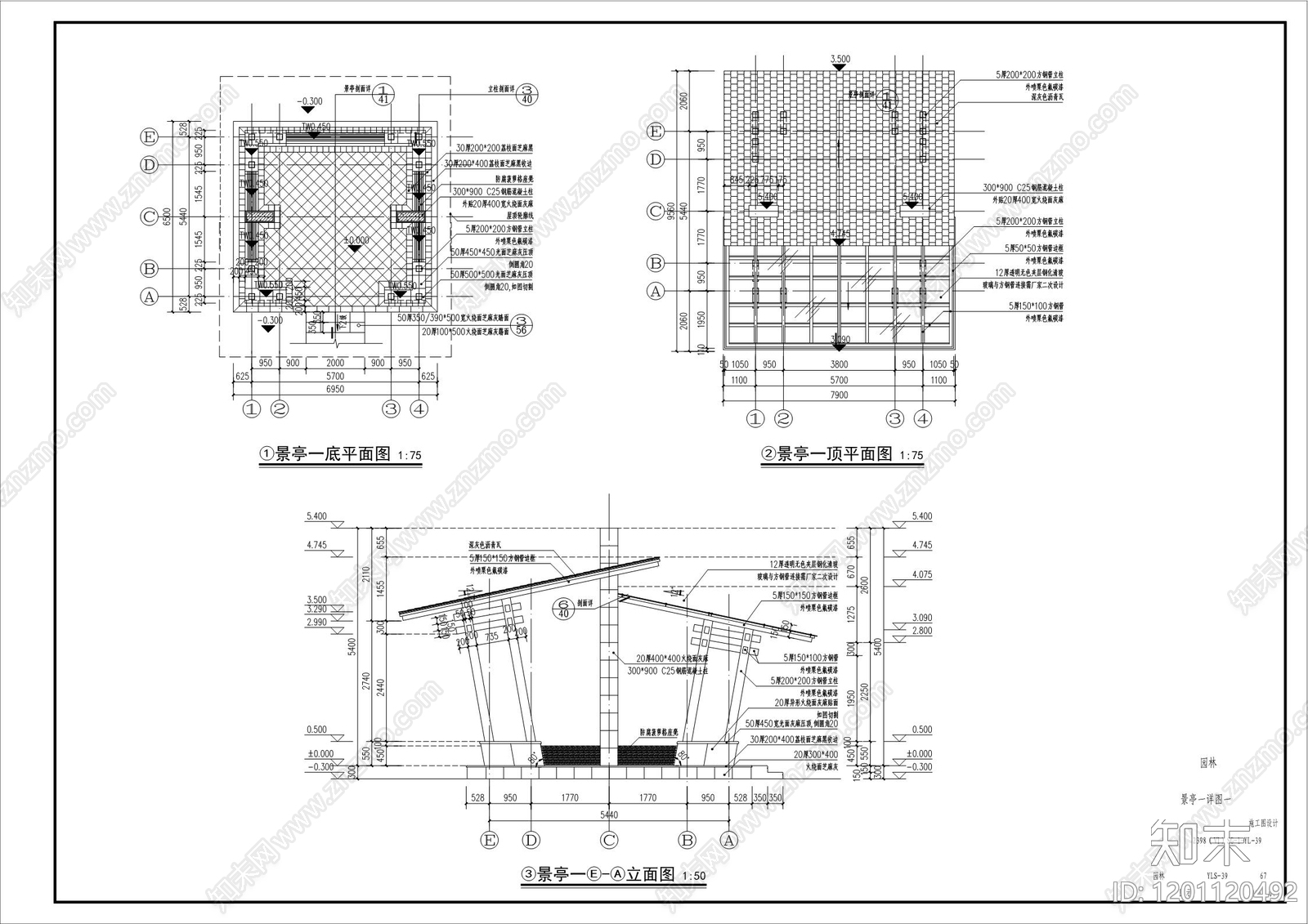
现代亭子CAD下载
ID: 1201120492
复制
上传作者
ID:64824478
ID:64824478上传时间2025-07-12
文件大小0.25M
设计风格:--
CAD版本:天正建筑 2014
包含文件:CAD
授权独家
立即下载
收藏
分享
举报
相关推荐
综合
景观小品
亭子
廊架
景墙
综合景观小品
雨棚
围墙
挡土墙
入口
景观坐凳


ID:64824478上传时间2025-07-12
文件大小0.25M
设计风格:--
CAD版本:天正建筑 2014
包含文件:CAD
授权独家