CAD频道
CAD图库
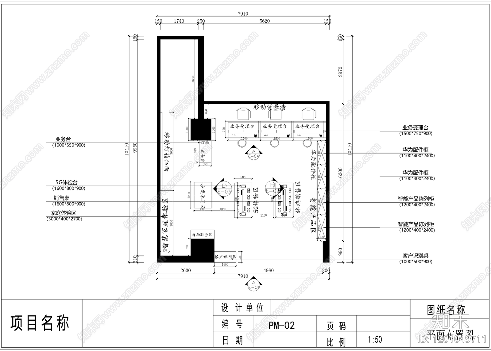
现代其他商业空间 手机营业厅专卖店 室内装修布局 手机店平面布置图 手机...
1/
2
Previous
Next
现代其他商业空间CAD下载
ID: 1201049711
复制
上传作者
雨过之后
上传时间
2025-07-10
文件大小
1.67M
设计风格:
--
CAD版本:
CAD2004
包含文件:
CAD
授权
独家
立即下载
收藏
分享
举报
相关推荐
综合
商业空间
其他商业空间
售楼处
商场
超市
服装店
书店
美甲店
珠宝店
4s店