CAD频道
CAD图库
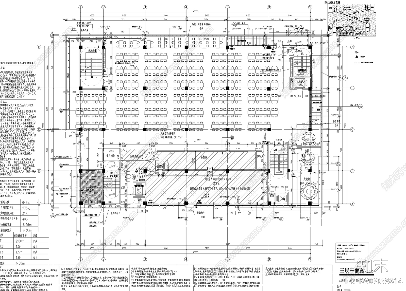
现代学校建筑 大学食堂 施工图
1/
7
Previous
Next
现代学校建筑CAD下载
ID: 1200958814
复制
上传作者
GqZZ
上传时间
2025-07-09
文件大小
7.78M
设计风格:
--
CAD版本:
CAD2004
包含文件:
CAD
授权
独家
立即下载
收藏
分享
举报
相关推荐
综合
教育建筑
学校建筑
幼儿园建筑