CAD频道
CAD图库
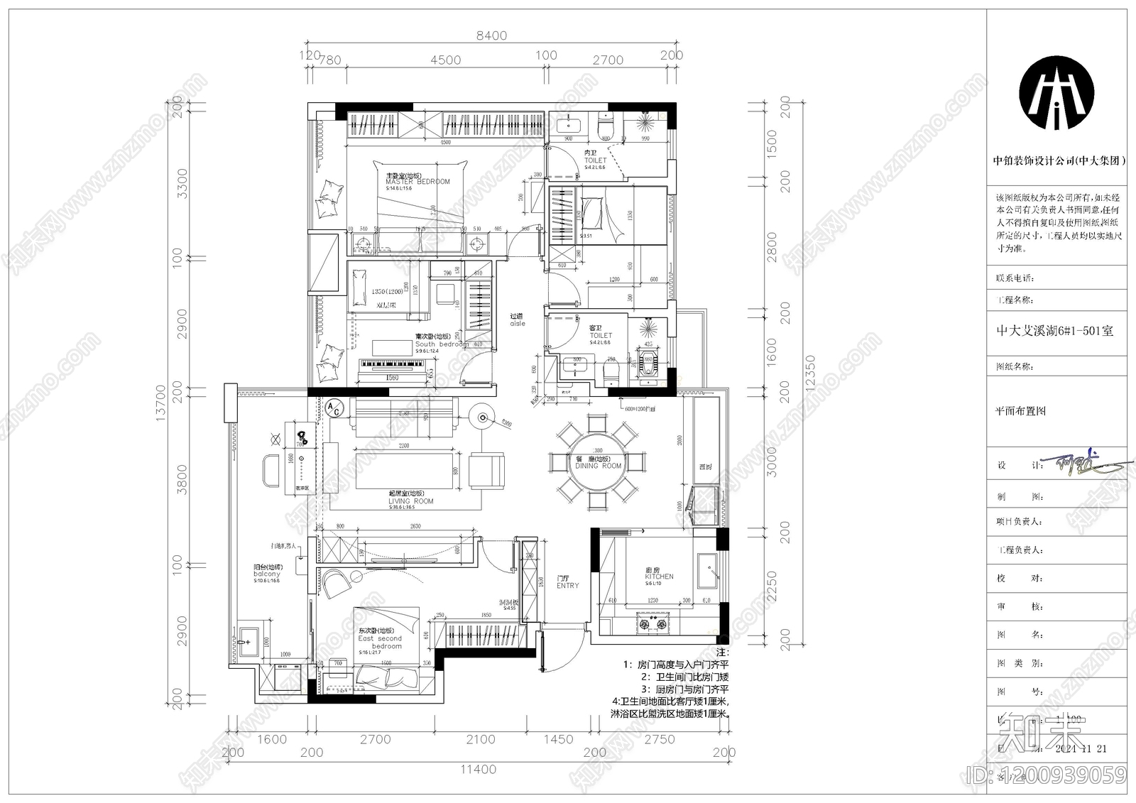
其他家装空间 平面图 水电图 吊顶图 立面图 施工图
1/
8
Previous
Next
其他家装空间CAD下载
ID: 1200939059
复制
上传作者
何軍龍
上传时间
2025-07-08
文件大小
27.62M
设计风格:
--
CAD版本:
CAD2004
包含文件:
CAD
授权
独家
立即下载
收藏
分享
举报
相关推荐
综合
家装
其他家装空间
公寓
别墅
平层
家装局部空间
样板间
阳光房
全屋智能
全屋定制