
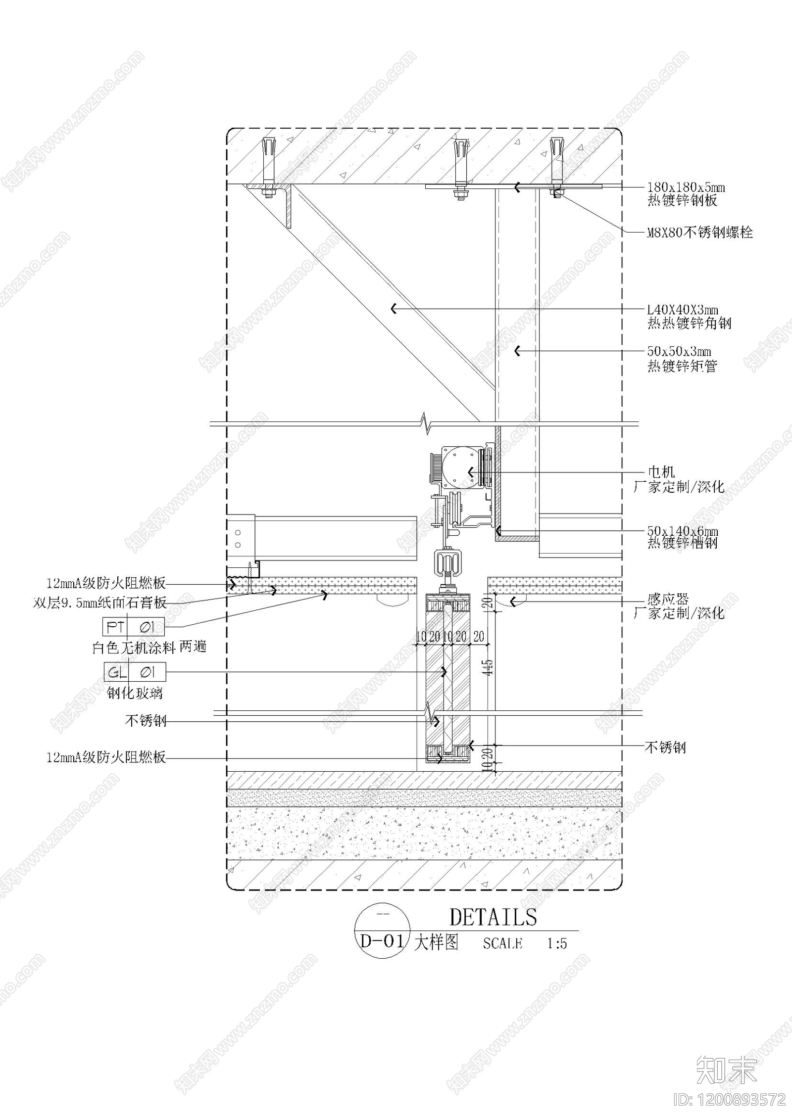
吊顶节点CAD下载
ID: 1200893572
复制
上传作者
工装室内深化设计师
工装室内深化设计师上传时间2025-07-07
文件大小1.37M
设计风格:--
CAD版本:CAD2007
包含文件:CAD
授权独家
立即下载
收藏
分享
举报
相关推荐
综合
吊顶节点
方通吊顶
格栅吊顶
扣板吊顶
软膜天花
铝单板吊顶
GRG吊顶节点
石膏板吊顶
矿棉板吊顶

工装室内深化设计师上传时间2025-07-07
文件大小1.37M
设计风格:--
CAD版本:CAD2007
包含文件:CAD
授权独家