1/10


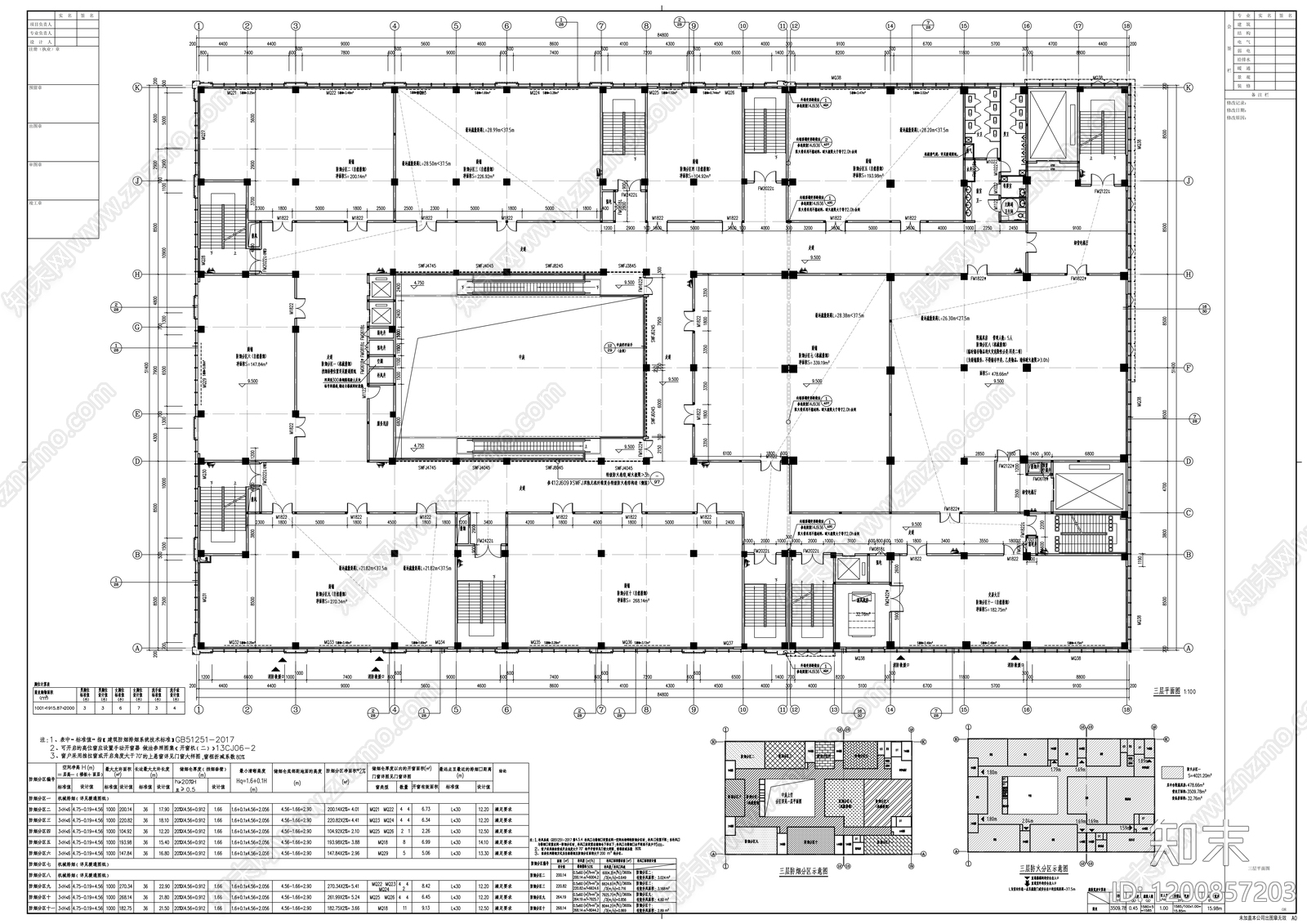
现代农贸市场建筑CAD下载
ID: 1200857203
复制
上传作者
常威打来福
常威打来福上传时间2025-07-06
文件大小7.2M
设计风格:--
CAD版本:天正CAD6.0
包含文件:CAD
授权独家
立即下载
收藏
分享
举报
相关推荐
综合
商业建筑
农贸市场建筑
售楼处建筑
其他商业建筑
商业街
商业综合体
美食街
购物中心
餐饮建筑
娱乐建筑


常威打来福上传时间2025-07-06
文件大小7.2M
设计风格:--
CAD版本:天正CAD6.0
包含文件:CAD
授权独家