CAD频道
CAD图库
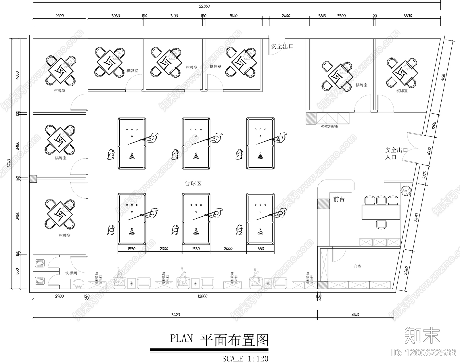
现代简约台球厅 台球城 台球厅 台球 棋牌室 平面图
现代简约台球厅CAD下载
ID: 1200622533
复制
上传作者
平步青云
上传时间
2025-07-01
文件大小
0.54M
设计风格:
--
CAD版本:
CAD2006
包含文件:
CAD
授权
独家
立即下载
收藏
分享
举报
相关推荐
综合
休闲娱乐空间
台球厅
会所
美容院
理发店
电影院
茶馆
健身房
KTV
酒吧