CAD频道
CAD图库
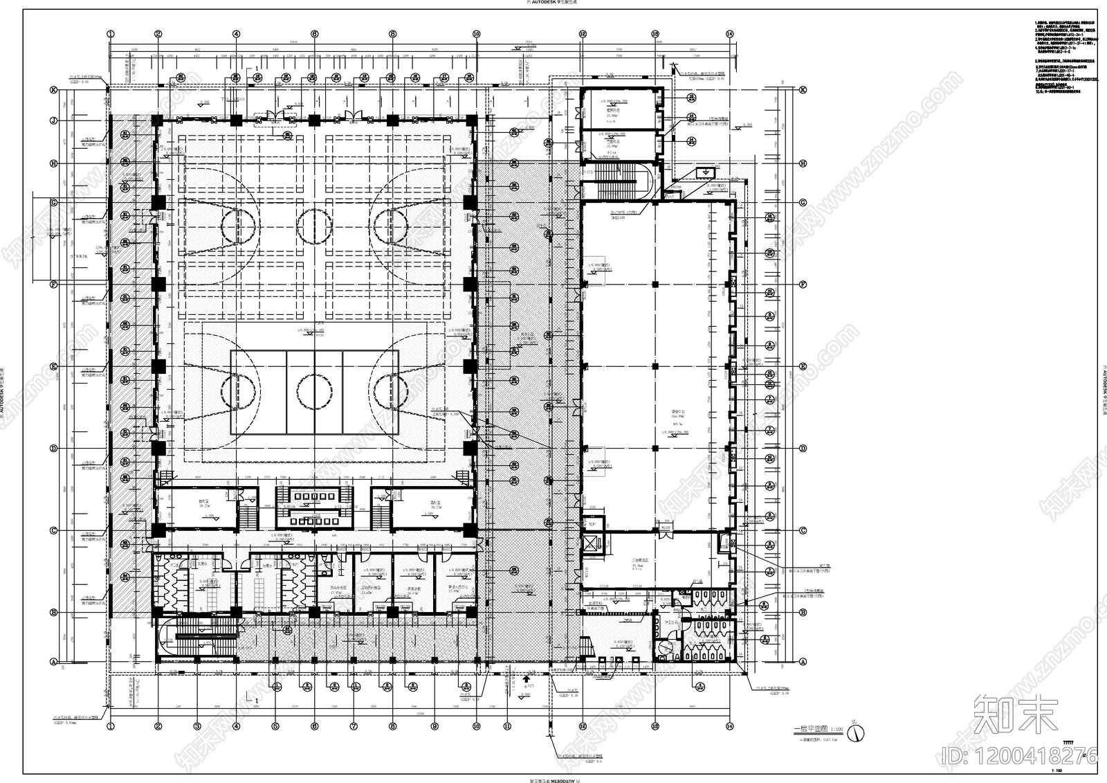
现代体育馆建筑 体育健身中心建筑 施工图
1/
10
Previous
Next
现代体育馆建筑CAD下载
ID: 1200418276
复制
上传作者
承诺不熬椰
上传时间
2025-06-25
文件大小
2.7M
设计风格:
--
CAD版本:
CAD2004
包含文件:
CAD
授权
独家
立即下载
收藏
分享
举报
相关推荐
综合
文化建筑
体育馆建筑
图书馆建筑
博物馆建筑
美术馆建筑
游泳馆建筑
教堂
其他文化建筑