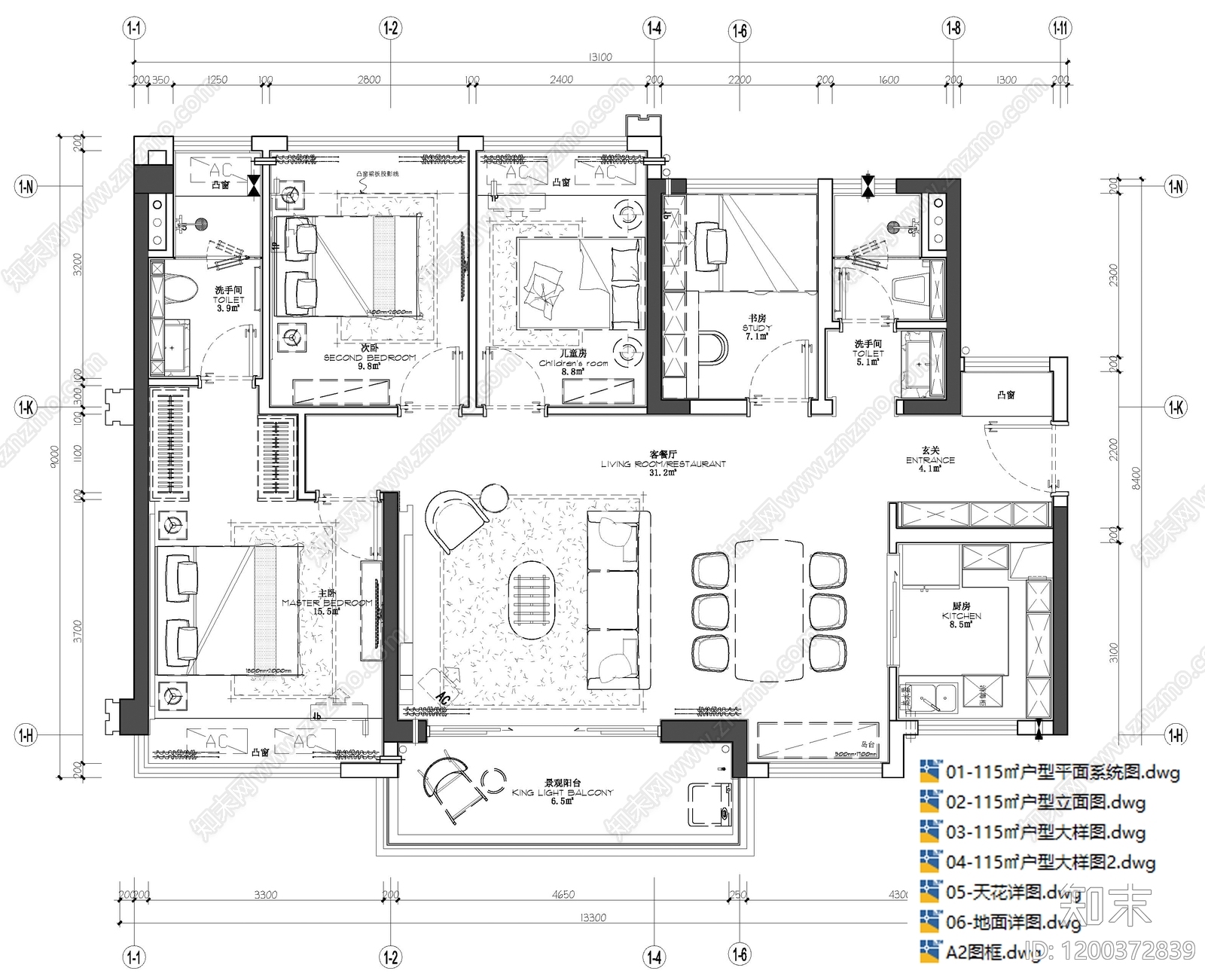
样板间施工图下载【ID:1200372839】

样板间CAD下载

ID: 1200372839
复制
上传作者
一条大头鱼一条大头鱼

上传时间2025-06-24

文件大小11.42M

设计风格:--

CAD版本:--

包含文件:CAD

授权独家

立即下载
收藏
分享
举报
相关推荐
综合
家装
样板间
公寓
别墅
平层
其他家装空间
家装局部空间
阳光房
全屋智能
全屋定制