CAD频道
CAD图库
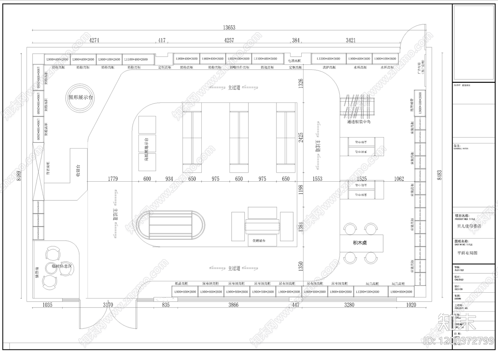
现代便利店 婴儿生活馆货柜 展示柜子店面 装修设计效果图库 母婴 施工图
1/
2
Previous
Next
现代便利店CAD下载
ID: 1200372799
复制
上传作者
雨过之后
上传时间
2025-06-24
文件大小
0.47M
设计风格:
--
CAD版本:
CAD2004
包含文件:
CAD
授权
独家
立即下载
收藏
分享
举报
相关推荐
综合
商业空间
便利店
售楼处
商场
其他商业空间
超市
服装店
书店
美甲店
珠宝店