CAD频道
CAD图库
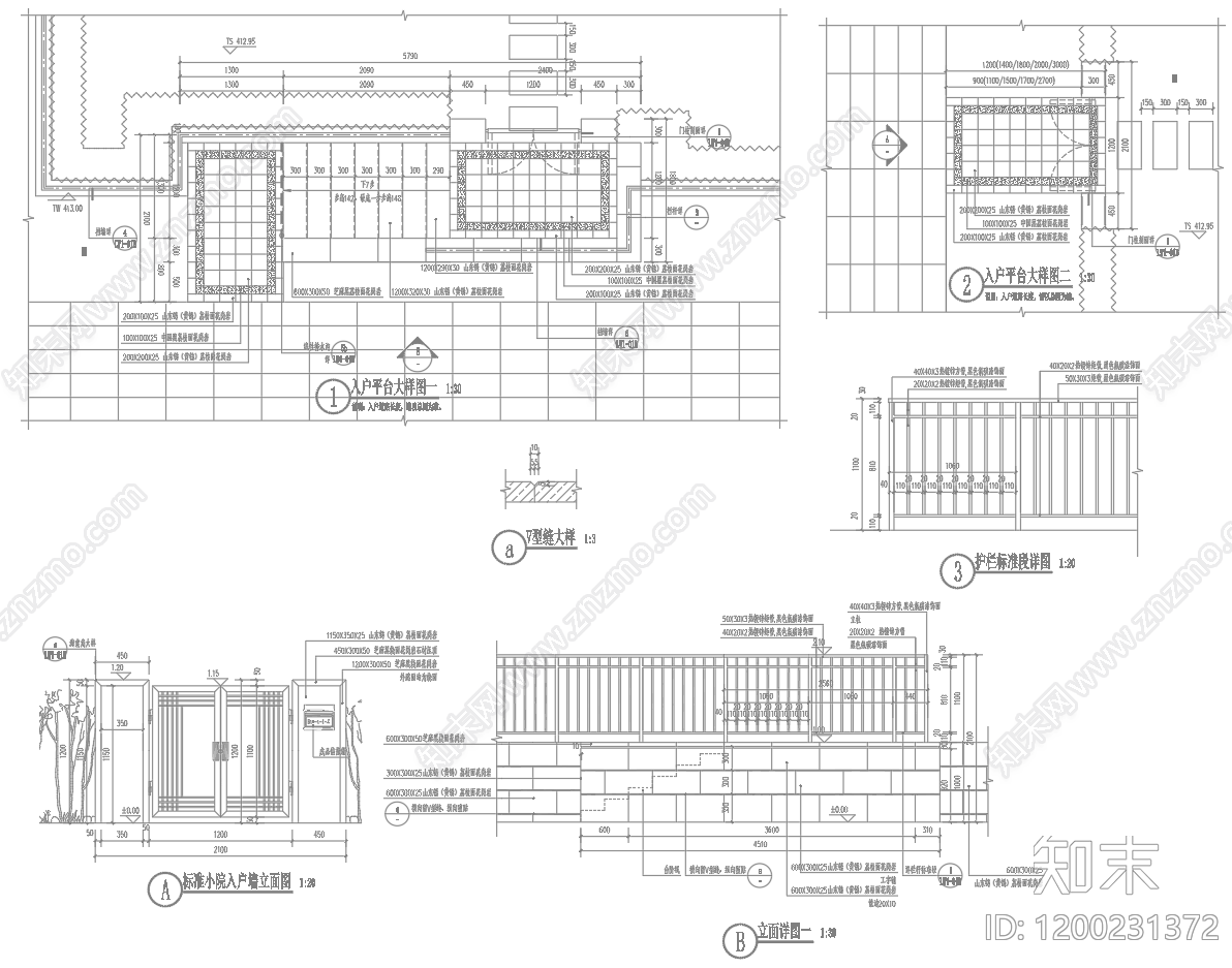
现代入口 庭院铁艺装饰门 矮墙格栅护栏 施工图
1/
2
Previous
Next
现代入口CAD下载
ID: 1200231372
复制
上传作者
7684529
上传时间
2025-06-21
文件大小
1.1M
设计风格:
--
CAD版本:
CAD2018
包含文件:
CAD
授权
独家
立即下载
收藏
分享
举报
相关推荐
综合
景观小品
入口
亭子
廊架
景墙
综合景观小品
雨棚
围墙
挡土墙
景观坐凳