CAD频道
CAD图库
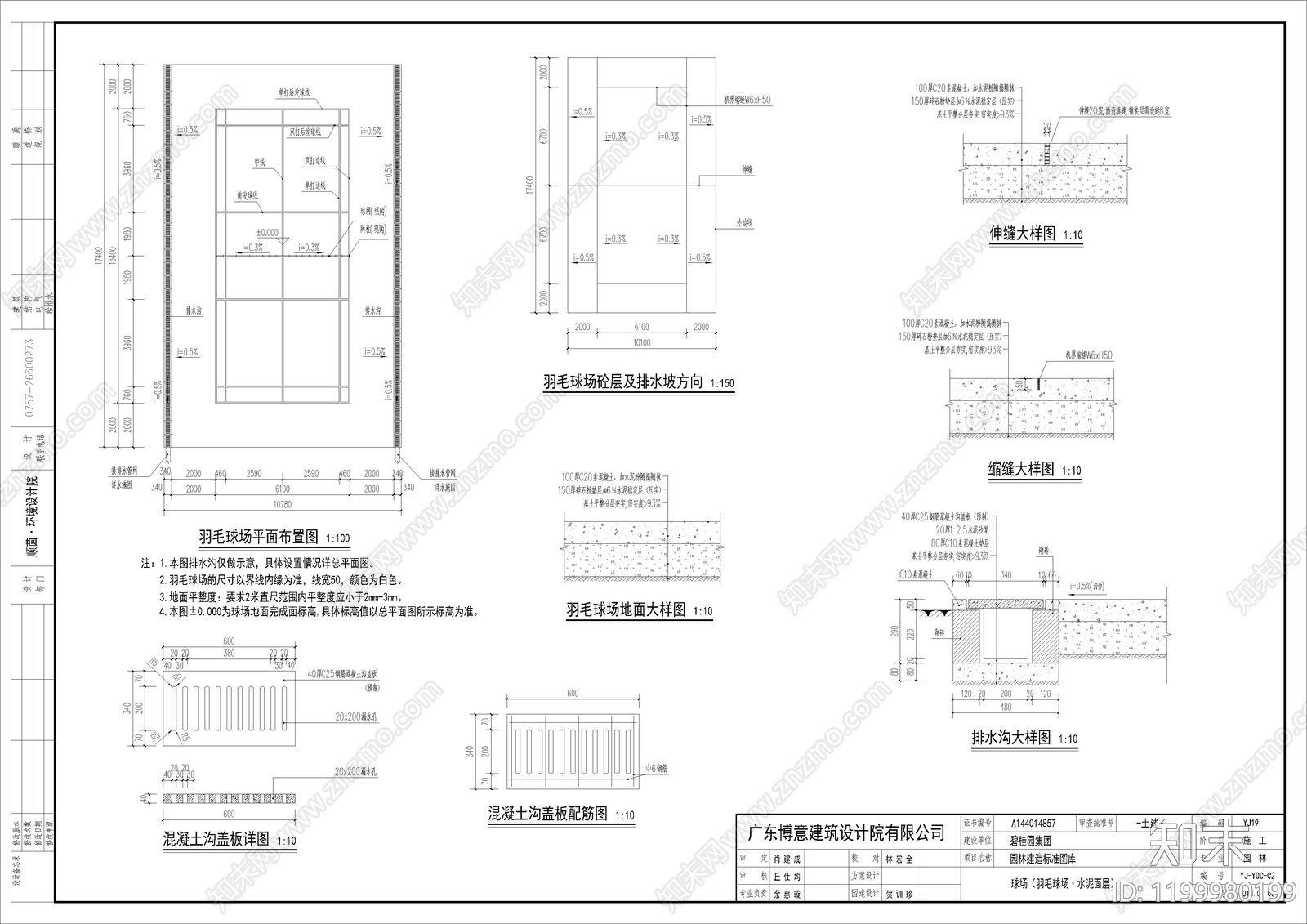
现代羽毛球场 羽毛球场 构造做法 施工图
1/
3
Previous
Next
现代羽毛球场CAD下载
ID: 1199980199
复制
上传作者
大大笨象(互粉)
上传时间
2025-06-18
文件大小
0.2M
设计风格:
--
CAD版本:
CAD2010
包含文件:
CAD
授权
独家
立即下载
收藏
分享
举报
相关推荐
综合
运动场
羽毛球场
网球场
篮球场
其他运动场地
操场
足球场
看台
高尔夫