1/4


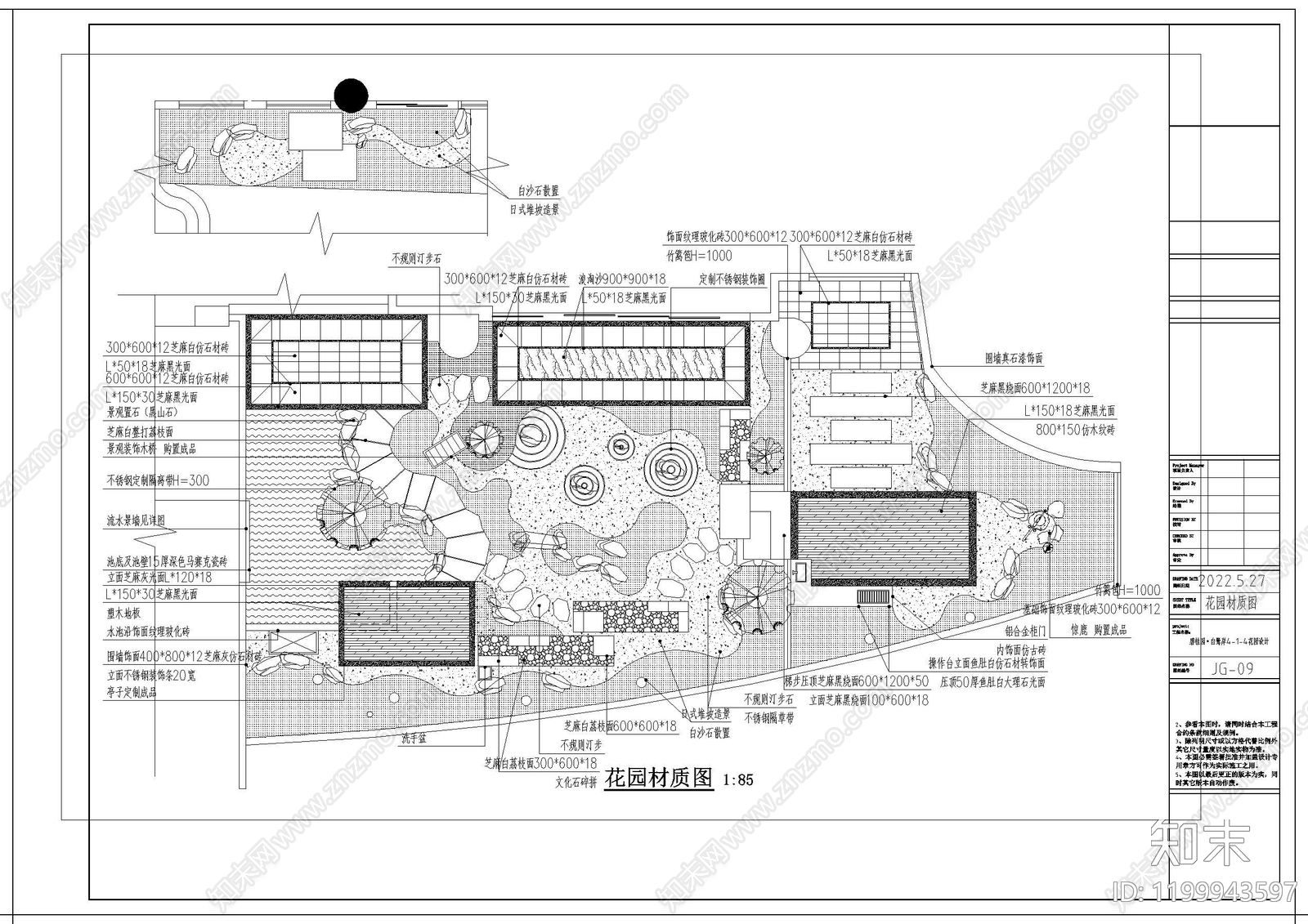
日式庭院CAD下载
ID: 1199943597
复制
上传作者
xin图
xin图上传时间2025-06-18
文件大小18.27M
设计风格:--
CAD版本:CAD2004
包含文件:CAD
授权独家
立即下载
收藏
分享
举报
相关推荐
综合
居住区景观
庭院
屋顶花园
示范区景观
售楼处景观
小区主入口
小区中心广场
宅间绿地
社区儿童区
社区健身区


xin图上传时间2025-06-18
文件大小18.27M
设计风格:--
CAD版本:CAD2004
包含文件:CAD
授权独家