CAD频道
CAD图库
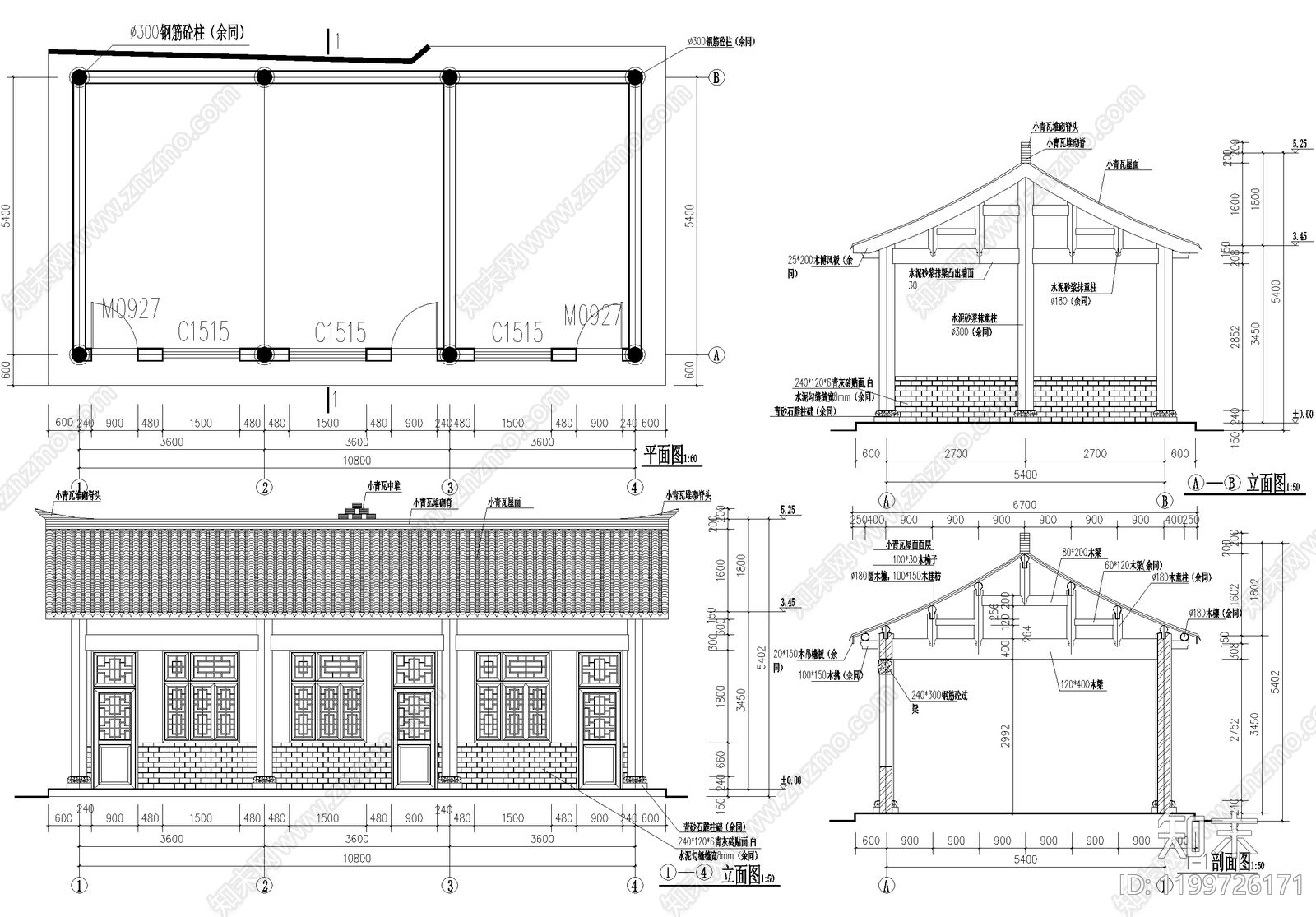
仿古建筑 服务用房 川东北民居风格 砖木结构 小青瓦屋面 施工图
1/
2
Previous
Next
仿古建筑CAD下载
ID: 1199726171
复制
上传作者
74426266987
上传时间
2025-06-16
文件大小
0.53M
设计风格:
--
CAD版本:
CAD2010
包含文件:
CAD
授权
普通
立即下载
收藏
分享
举报
相关推荐
综合
古建
仿古建筑
祠堂
寺庙
徽派建筑
其他古建筑