CAD频道
CAD图库
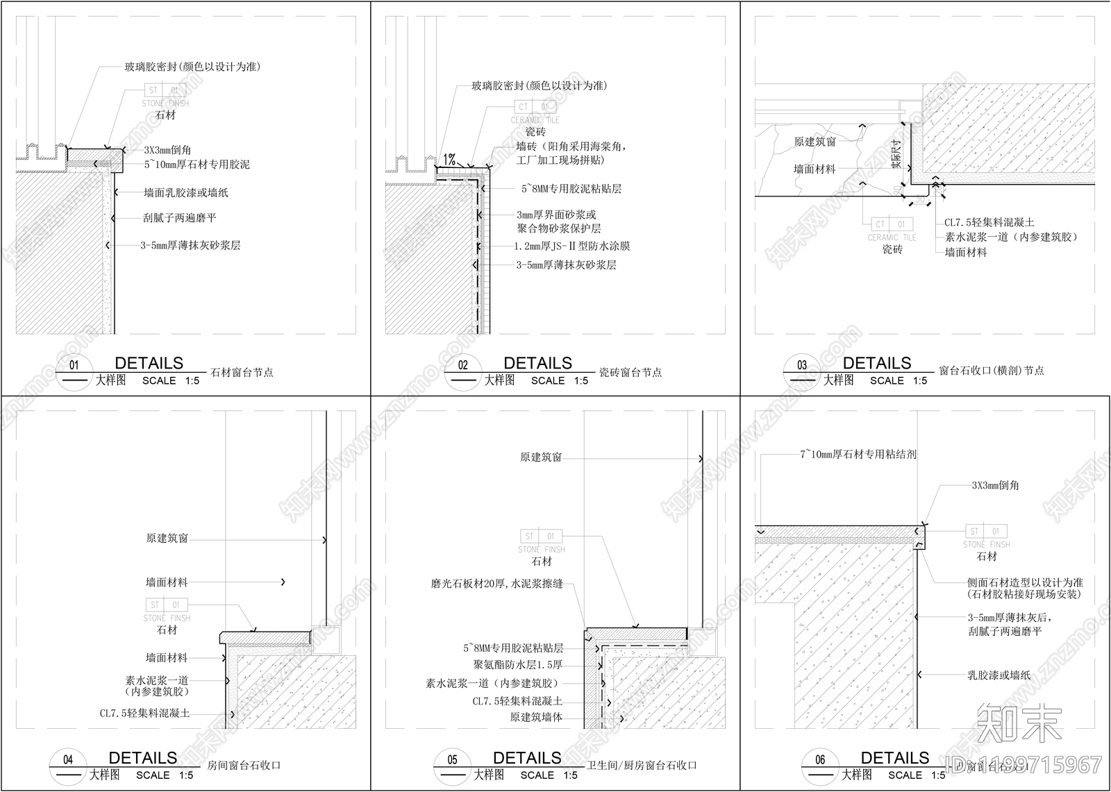
窗节点 窗台石节点 窗台大理石节点图 施工图
窗节点CAD下载
ID: 1199715967
复制
上传作者
52054
上传时间
2025-06-16
文件大小
0.49M
设计风格:
--
CAD版本:
CAD2004
包含文件:
CAD
授权
独家
立即下载
收藏
分享
举报
相关推荐
综合
节点详图
窗节点
吊顶节点
墙面节点
地面节点
门节点
其他节点详图
建筑工程节点
景观小品
楼梯节点