CAD频道
CAD图库
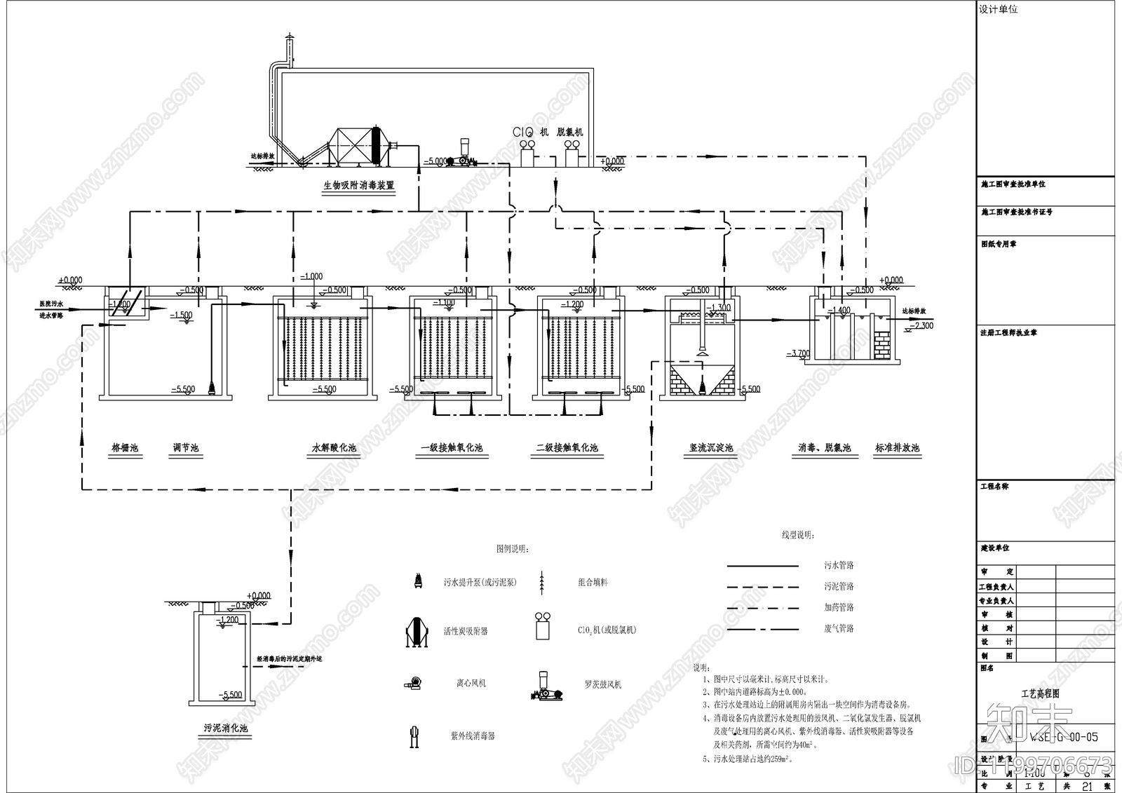
水处理 某医院废水工艺 污水处理平面图 施工图
1/
8
Previous
Next
水处理CAD下载
ID: 1199706673
复制
上传作者
承诺不熬椰
上传时间
2025-06-16
文件大小
2.3M
设计风格:
--
CAD版本:
CAD2004
包含文件:
CAD
授权
独家
立即下载
收藏
分享
举报
相关推荐
综合
机电工程
水处理
给排水图
暖通空调
电气图
电气工程节点
消防设施
机械设备
其他机电图纸
建筑给排水