1/4


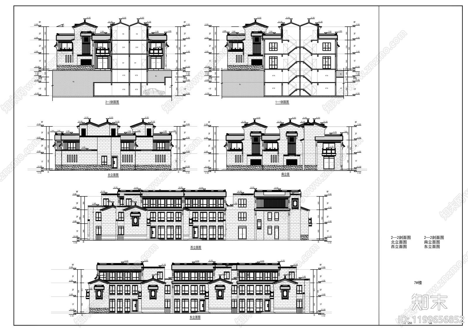
中式别墅建筑CAD下载
ID: 1199656852
复制
上传作者
常威打来福
常威打来福上传时间2025-06-16
文件大小9.38M
设计风格:--
CAD版本:天正CAD6.0
包含文件:CAD
授权独家
立即下载
收藏
分享
举报
相关推荐
综合
居住建筑
别墅建筑
住宅楼建筑
四合院
其他居住建筑
高层住宅
多层住宅
低层住宅
公寓建筑
联排住宅


常威打来福上传时间2025-06-16
文件大小9.38M
设计风格:--
CAD版本:天正CAD6.0
包含文件:CAD
授权独家