CAD频道
CAD图库
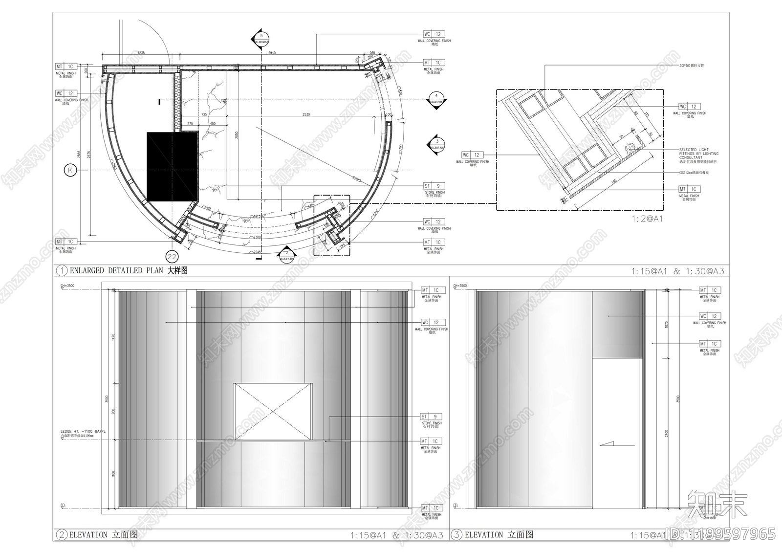
吧台节点 异形吧台节点 异形收银台节点 异形服务台节点 临售接待台节点 ...
1/
3
Previous
Next
吧台节点CAD下载
ID: 1199597965
复制
上传作者
CCCL
上传时间
2025-06-16
文件大小
0.25M
设计风格:
--
CAD版本:
CAD2004
包含文件:
CAD
授权
独家
立即下载
收藏
分享
举报
相关推荐
综合
家具节点详图
吧台节点
壁炉节点
柜体节点
卡座节点
前台节点
综合家具节点