CAD频道
CAD图库
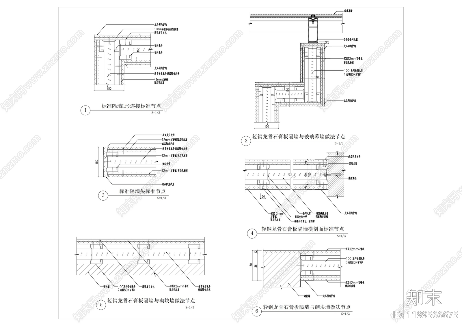
轻质隔墙 轻质隔墙标准节点 加气块隔墙标准节 施工图
轻质隔墙CAD下载
ID: 1199566675
复制
上传作者
CCCL
上传时间
2025-06-15
文件大小
0.59M
设计风格:
--
CAD版本:
CAD2004
包含文件:
CAD
授权
独家
立即下载
收藏
分享
举报
相关推荐
综合
墙体构件
轻质隔墙
外墙构造
内墙构造
幕墙系统
砌体墙
剪力墙
挡土墙
夹芯墙