CAD频道
CAD图库
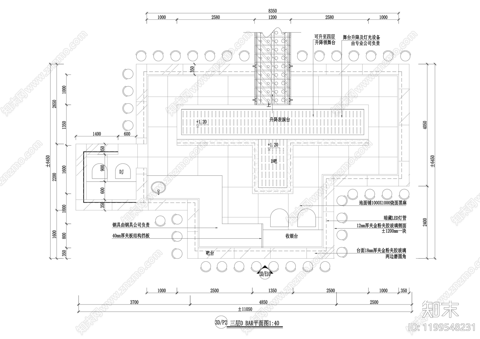
现代舞台 酒吧舞台详图 演艺舞台节点 T台走秀舞台 施工图
现代舞台CAD下载
ID: 1199548231
复制
上传作者
CCCL
上传时间
2025-06-15
文件大小
0.09M
设计风格:
--
CAD版本:
CAD2004
包含文件:
CAD
授权
独家
立即下载
收藏
分享
举报
相关推荐
综合
休闲娱乐空间
舞台
会所
美容院
理发店
电影院
茶馆
健身房
KTV
酒吧