CAD频道
CAD图库
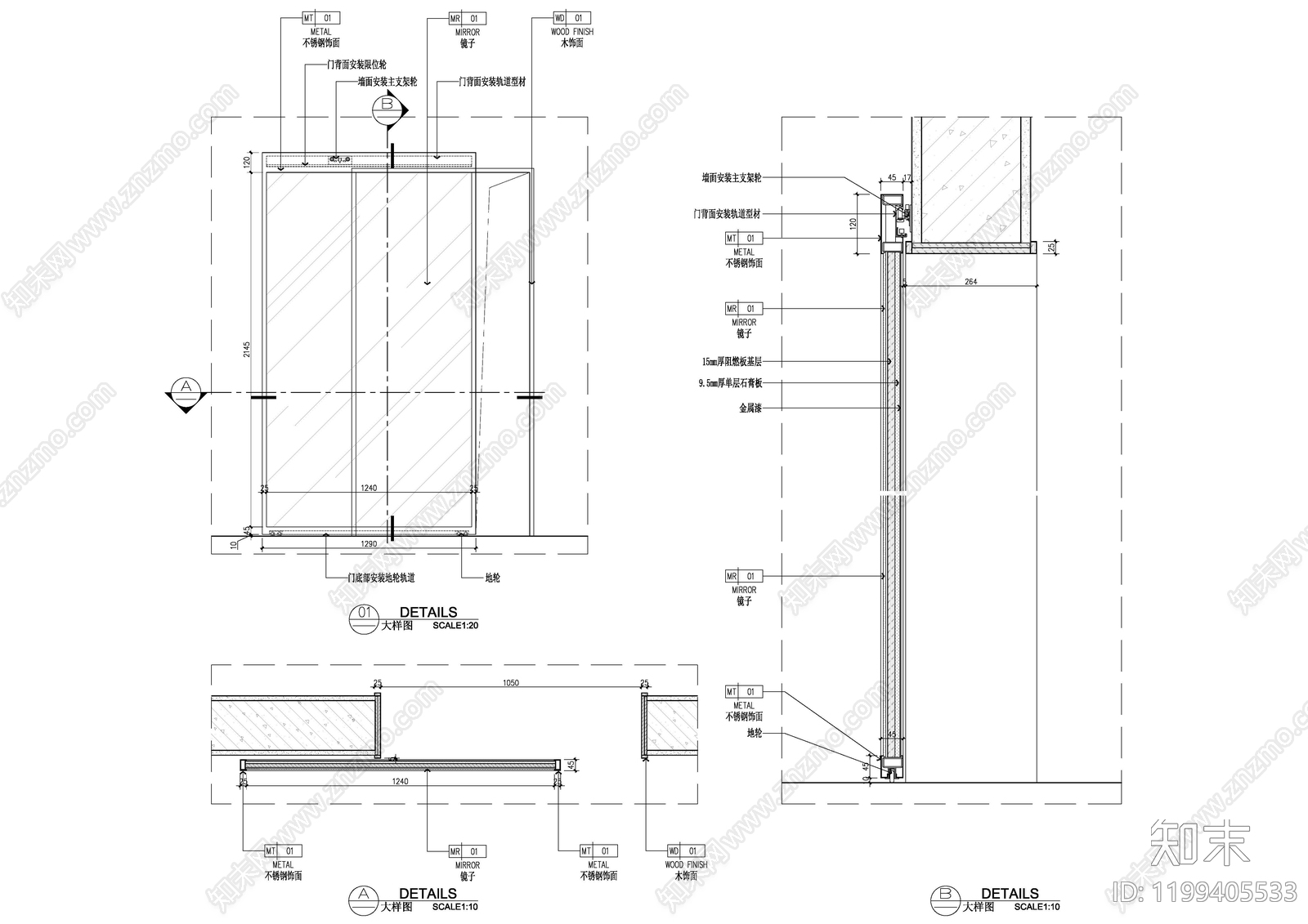
综合门节点 幽灵金属玻璃门 幽灵移门 施工图
1/
2
Previous
Next
综合门节点CAD下载
ID: 1199405533
复制
上传作者
一条大头鱼
上传时间
2025-06-14
文件大小
0.46M
设计风格:
--
CAD版本:
--
包含文件:
CAD
授权
独家
立即下载
收藏
分享
举报
相关推荐
综合
门节点
综合门节点
入户门
铁艺大门
月洞门
玻璃门节点
推拉门节点
隐形门节点