CAD频道
CAD图库
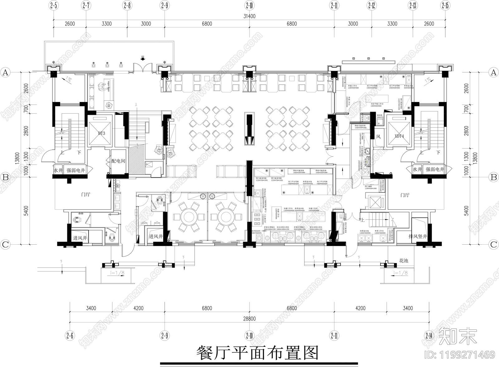
新中式中餐厅 300㎡餐厅平面 餐馆设计平面图 主题餐厅平面图 施工图
新中式中餐厅CAD下载
ID: 1199271469
复制
上传作者
用户0ebaa1
上传时间
2025-06-13
文件大小
0.42M
设计风格:
--
CAD版本:
CAD2004
包含文件:
CAD
授权
独家
立即下载
收藏
分享
举报
相关推荐
综合
餐饮空间
中餐厅
西餐厅
快餐店
自助餐厅
茶餐厅
其他餐饮空间
食堂
奶茶店
咖啡厅