CAD频道
CAD图库
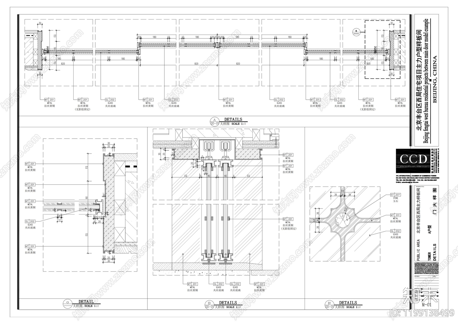
玻璃门节点 玻璃吊滑门节点 玻璃折叠门节点 样板间门节点 施工图
玻璃门节点CAD下载
ID: 1199138499
复制
上传作者
CCCL
上传时间
2025-06-12
文件大小
2.36M
设计风格:
--
CAD版本:
CAD2004
包含文件:
CAD
授权
独家
立即下载
收藏
分享
举报
相关推荐
综合
门节点
玻璃门节点
入户门
铁艺大门
月洞门
推拉门节点
隐形门节点
综合门节点