CAD频道
CAD图库
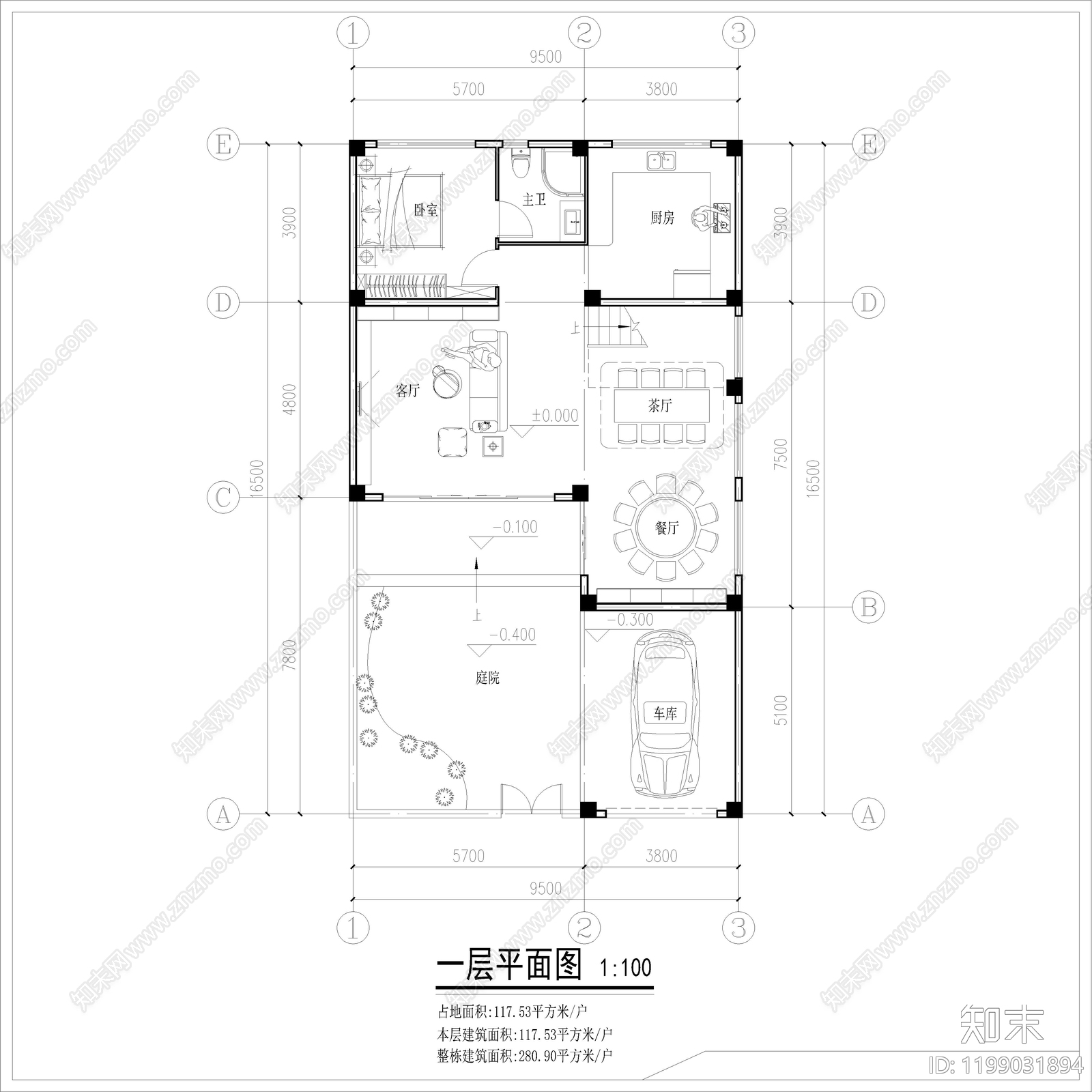
现代别墅建筑 三层独栋别墅平面 自建房平面 占地117平米 面积280平...
1/
3
Previous
Next
现代别墅建筑CAD下载
ID: 1199031894
复制
上传作者
北辙伏地
上传时间
2025-06-11
文件大小
0.8M
设计风格:
--
CAD版本:
CAD2004
包含文件:
CAD
授权
独家
立即下载
收藏
分享
举报
相关推荐
综合
家装平面图
平面布置图
墙体改造图
顶面布置图
灯具布置图
地面铺装图
水电布置图
插座布置图
改造对比图