CAD频道
CAD图库
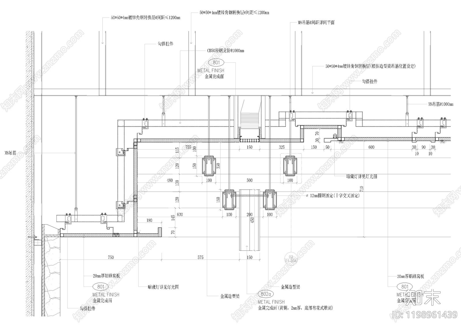
铝单板吊顶 蜂窝铝板天花节点 施工图
1/
3
Previous
Next
铝单板吊顶CAD下载
ID: 1198961439
复制
上传作者
小趴菜园
上传时间
2025-06-11
文件大小
3.68M
设计风格:
--
CAD版本:
CAD2004
包含文件:
CAD
授权
独家
立即下载
收藏
分享
举报
相关推荐
综合
吊顶节点
铝单板吊顶
方通吊顶
格栅吊顶
扣板吊顶
软膜天花
GRG吊顶节点
石膏板吊顶
矿棉板吊顶