CAD频道
CAD图库
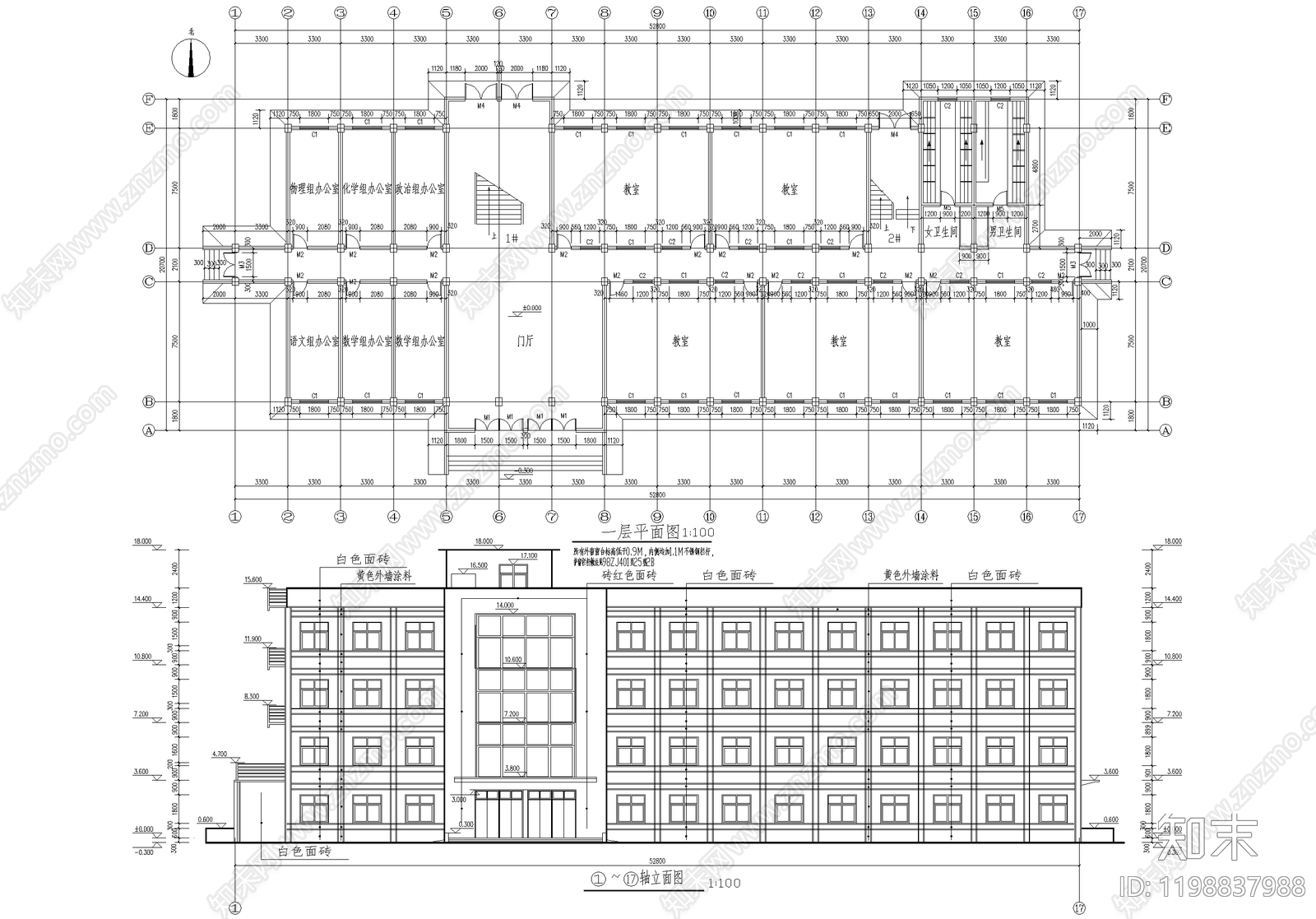
学校建筑 四层中学教学楼 教室办公室图书室 阅览室器材室 会议室美术舞蹈...
1/
6
Previous
Next
学校建筑CAD下载
ID: 1198837988
复制
上传作者
74426266987
上传时间
2025-06-10
文件大小
0.39M
设计风格:
--
CAD版本:
CAD2010
包含文件:
CAD
授权
普通
立即下载
收藏
分享
举报
相关推荐
综合
教育建筑
学校建筑
幼儿园建筑