CAD频道
CAD图库
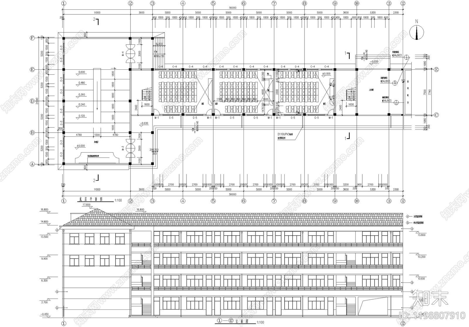
学校建筑 四层中学教学楼 办公用房教室 多功能厅储藏室 坡屋顶夹层 结构...
1/
10
Previous
Next
学校建筑CAD下载
ID: 1198807910
复制
上传作者
74426266987
上传时间
2025-06-10
文件大小
1.02M
设计风格:
--
CAD版本:
CAD2010
包含文件:
CAD
授权
普通
立即下载
收藏
分享
举报
相关推荐
综合
教育建筑
学校建筑
幼儿园建筑