CAD频道
CAD图库
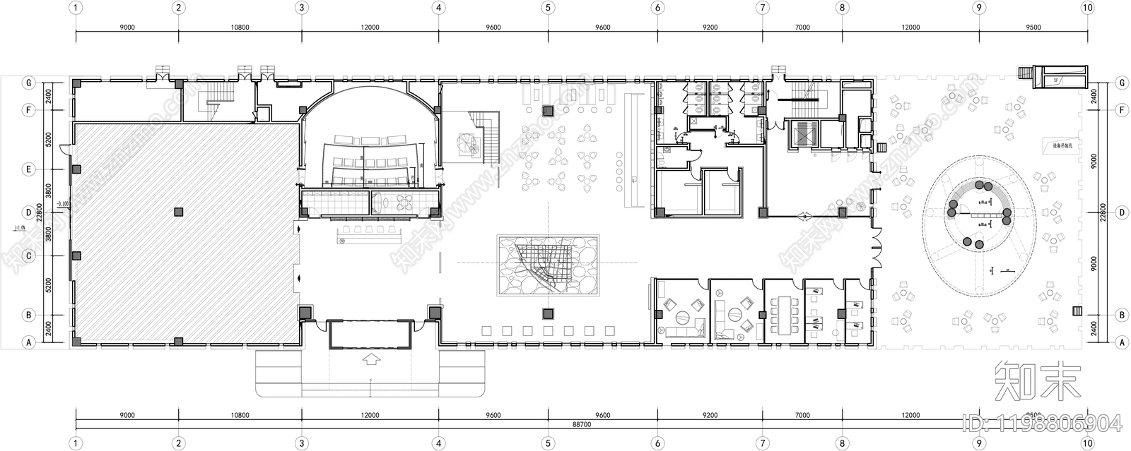
现代售楼处 售楼大厅平面图 售楼部设计平面图 房产销售中心平面 施工图
现代售楼处CAD下载
ID: 1198806904
复制
上传作者
用户0ebaa1
上传时间
2025-06-10
文件大小
0.31M
设计风格:
--
CAD版本:
CAD2004
包含文件:
CAD
授权
独家
立即下载
收藏
分享
举报
相关推荐
综合
商业空间
售楼处
商场
其他商业空间
超市
服装店
书店
美甲店
珠宝店
4s店