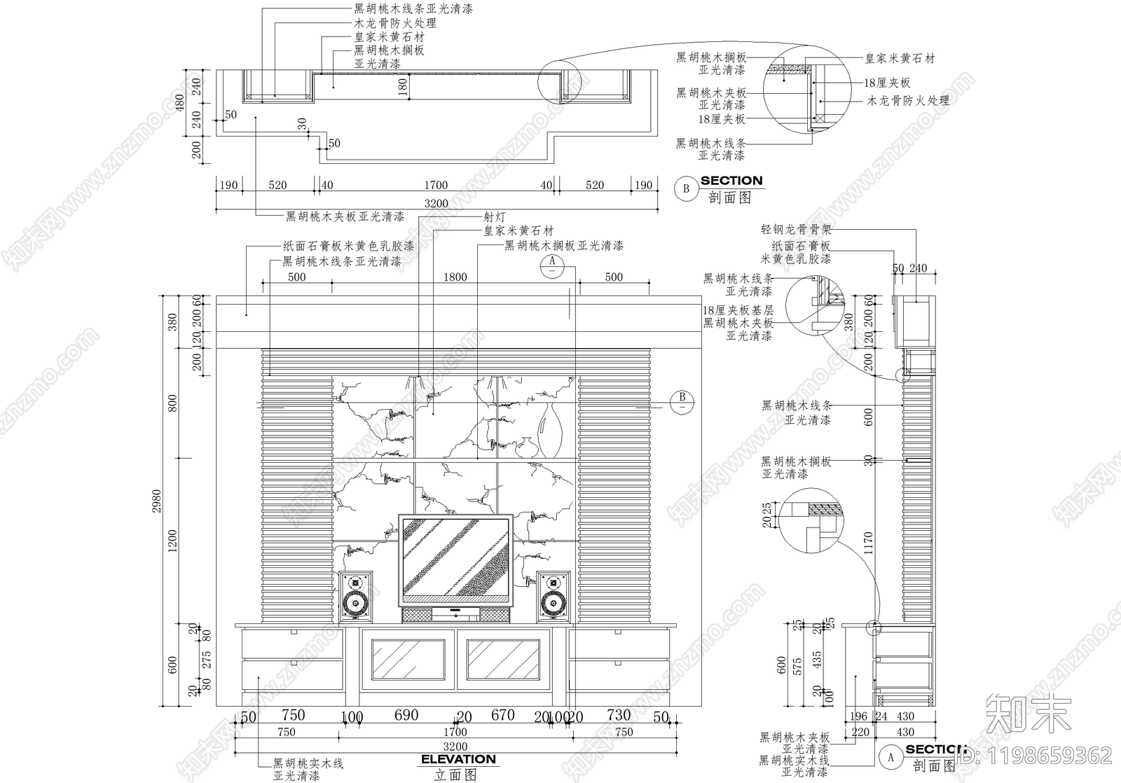
背景墙节点施工图下载【ID:1198659362】

背景墙节点CAD下载

ID: 1198659362
复制
上传作者
7442626698774426266987

上传时间2025-06-09

文件大小0.15M

设计风格:--

CAD版本:CAD2010

包含文件:CAD

授权普通

立即下载
收藏
分享
举报
相关推荐
综合
墙面节点
背景墙节点
轻钢龙骨隔墙
壁龛节点
隔音墙节点