CAD频道
CAD图库
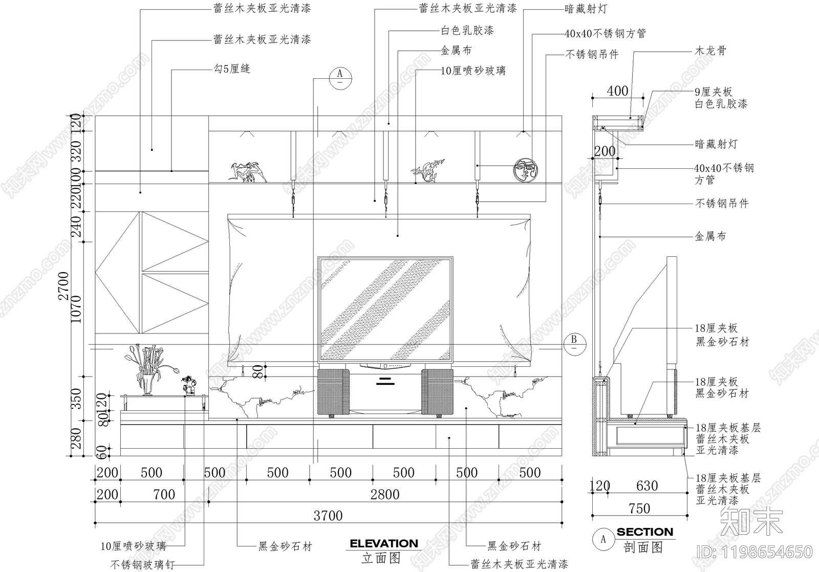
背景墙节点 客厅电视背景墙 置物架电视柜 施工图
1/
2
Previous
Next
背景墙节点CAD下载
ID: 1198654650
复制
上传作者
74426266987
上传时间
2025-06-09
文件大小
0.4M
设计风格:
--
CAD版本:
CAD2010
包含文件:
CAD
授权
普通
立即下载
收藏
分享
举报
相关推荐
综合
墙面节点
背景墙节点
轻钢龙骨隔墙
壁龛节点
隔音墙节点