CAD频道
CAD图库
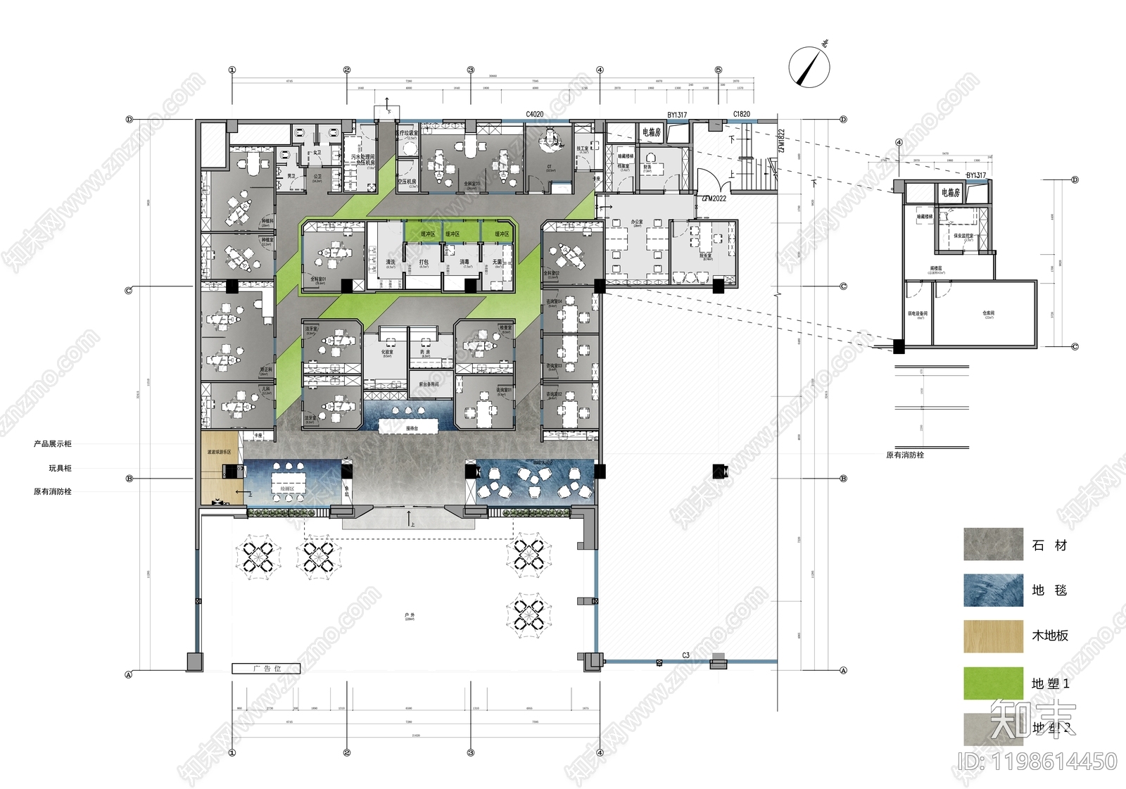
现代轻奢医院 牙科医院 口腔医院彩平图 口腔医院效果图 施工图
1/
6
Previous
Next
现代轻奢医院CAD下载
ID: 1198614450
复制
上传作者
箜(互粉)
上传时间
2025-06-09
文件大小
29.92M
设计风格:
--
CAD版本:
CAD2007
包含文件:
CAD
授权
独家
立即下载
收藏
分享
举报
相关推荐
综合
医疗空间
医院
养老院
宠物医院
中医馆
月子中心
其他医疗空间