CAD频道
CAD图库
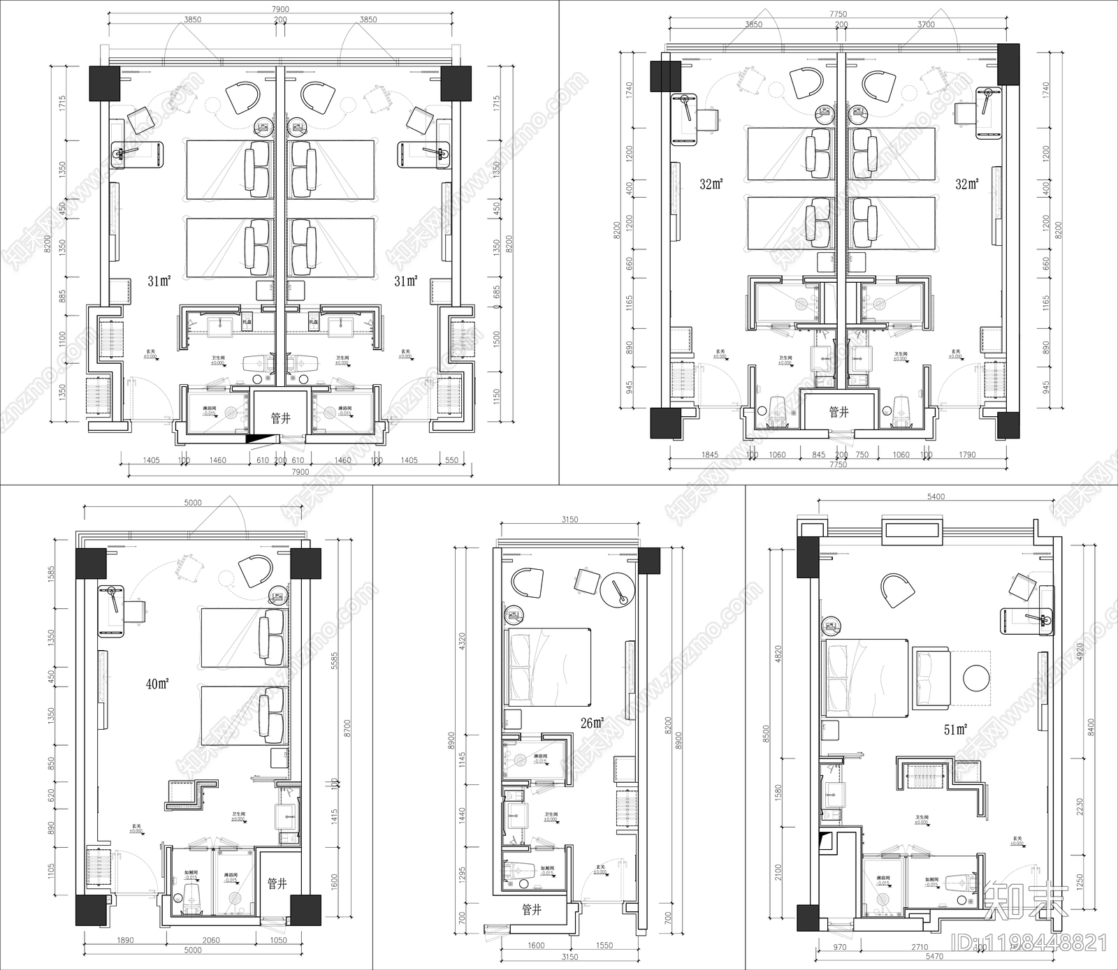
酒店客房 酒店客房平面图 酒店民宿平面 客房平面设计 大床房平面 连锁酒...
酒店客房CAD下载
ID: 1198448821
复制
上传作者
summer
上传时间
2025-06-07
文件大小
2.5M
设计风格:
--
CAD版本:
CAD2004
包含文件:
CAD
授权
独家
立即下载
收藏
分享
举报
相关推荐
综合
酒店
酒店客房
酒店餐厅
酒店大堂
酒店公区
酒店卫生间
酒店套房
酒店宴会厅
其他酒店