CAD频道
CAD图库
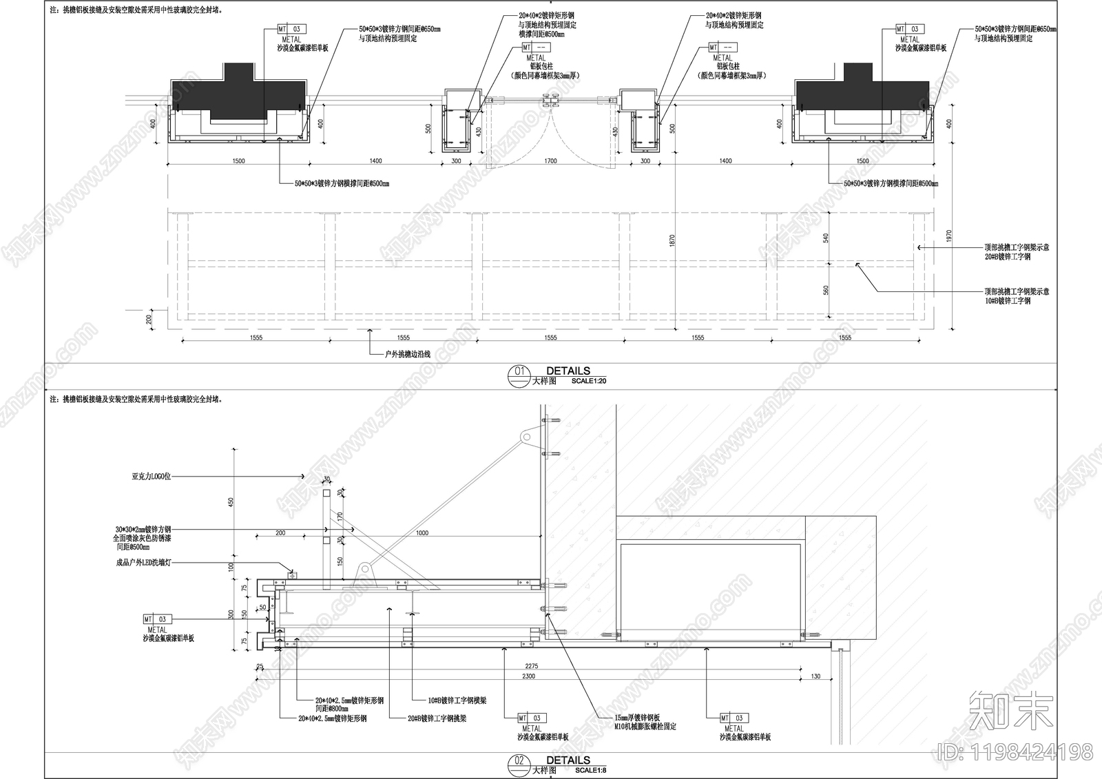
屋檐节点 铝单板挑檐详图 金属挑檐施工详图 施工图
屋檐节点CAD下载
ID: 1198424198
复制
上传作者
一条大头鱼
上传时间
2025-06-07
文件大小
0.54M
设计风格:
--
CAD版本:
--
包含文件:
CAD
授权
独家
立即下载
收藏
分享
举报
相关推荐
综合
建筑工程节点
屋檐节点
屋顶
柱子节点
吊装节点
斗拱节点
楼板节点
女儿墙节点
塔吊节点
天窗节点