CAD频道
CAD图库
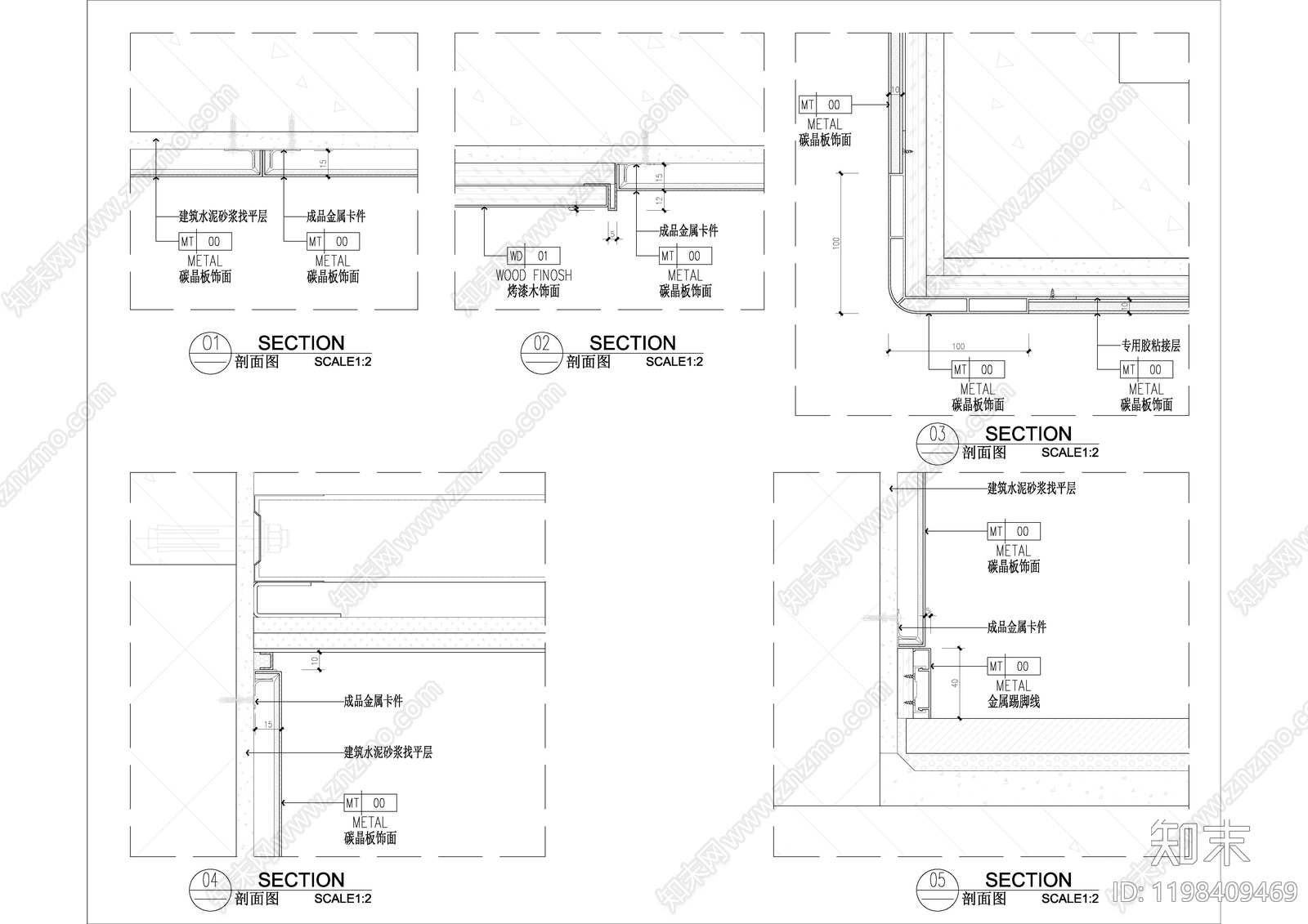
现代其他节点详图 碳晶板安装工艺 碳晶板饰面详图 施工图
现代其他节点详图CAD下载
ID: 1198409469
复制
上传作者
一条大头鱼
上传时间
2025-06-07
文件大小
0.14M
设计风格:
--
CAD版本:
--
包含文件:
CAD
授权
独家
立即下载
收藏
分享
举报
相关推荐
综合
节点详图
其他节点详图
吊顶节点
墙面节点
地面节点
门节点
建筑工程节点
景观小品
楼梯节点
水景