CAD频道
CAD图库
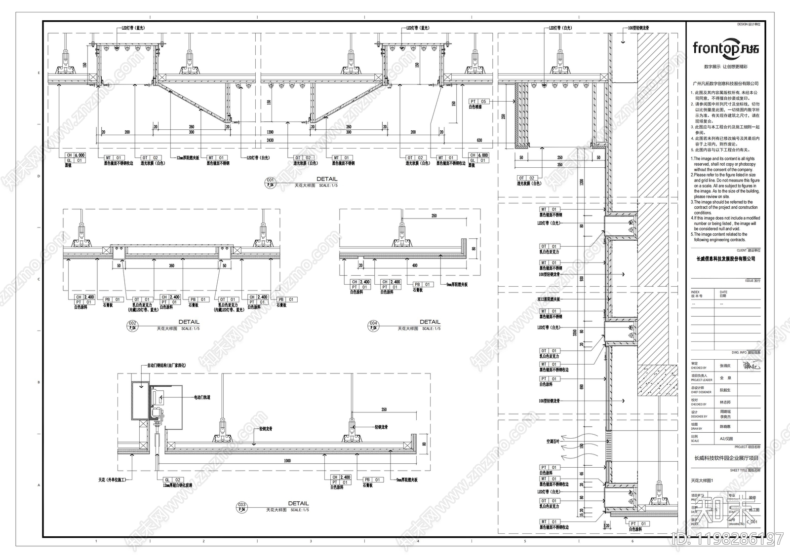
石膏板吊顶 5个展厅天花节点 反光灯槽 软膜天花 施工图
石膏板吊顶CAD下载
ID: 1198286197
复制
上传作者
CCCL
上传时间
2025-06-06
文件大小
2.24M
设计风格:
--
CAD版本:
CAD2004
包含文件:
CAD
授权
独家
立即下载
收藏
分享
举报
相关推荐
综合
吊顶节点
石膏板吊顶
方通吊顶
格栅吊顶
扣板吊顶
软膜天花
铝单板吊顶
GRG吊顶节点
矿棉板吊顶