CAD频道
CAD图库
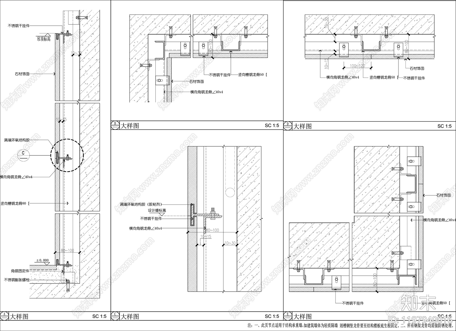
墙面节点 石材节点 干挂 护墙板 干挂石材节点 干挂大理石节点 施工图
墙面节点CAD下载
ID: 1197940016
复制
上传作者
MUYI
上传时间
2025-06-04
文件大小
2.51M
设计风格:
--
CAD版本:
CAD2004
包含文件:
CAD
授权
独家
立即下载
收藏
分享
举报
相关推荐
综合
墙面节点
背景墙节点
轻钢龙骨隔墙
壁龛节点
隔音墙节点