CAD频道
CAD图库
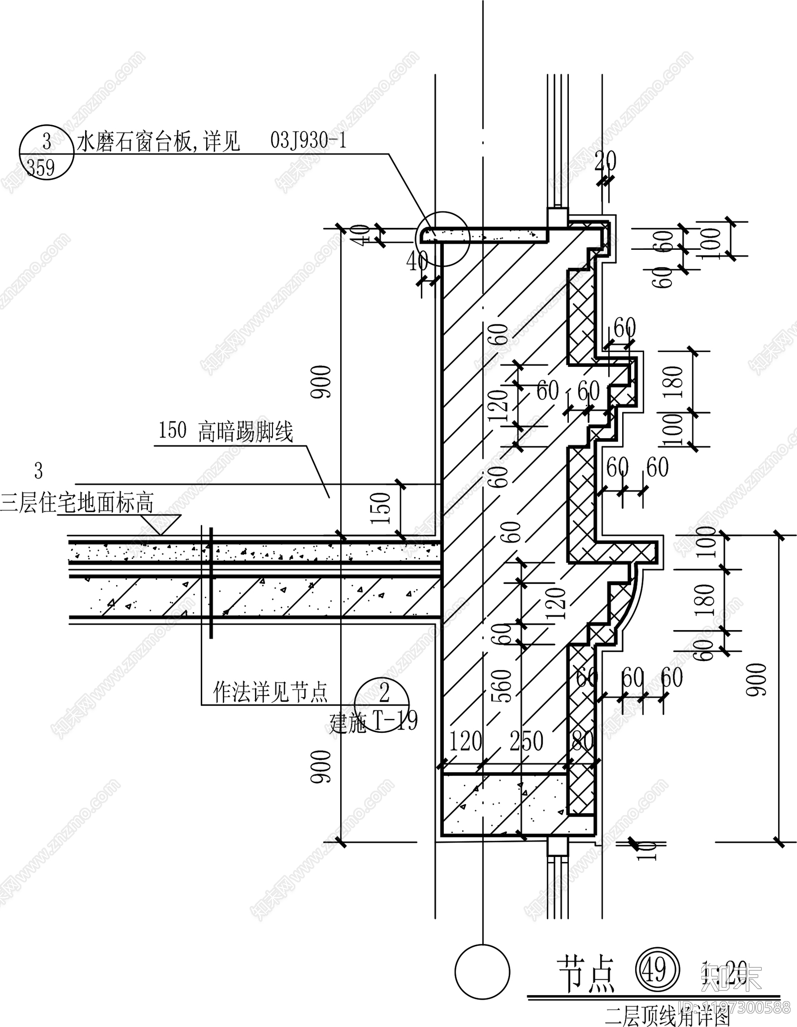
墙面节点 一层 二层 顶线角 施工图
1/
2
Previous
Next
墙面节点CAD下载
ID: 1197300588
复制
上传作者
用户f4c4d0
上传时间
2025-05-30
文件大小
0.99M
设计风格:
--
CAD版本:
--
包含文件:
CAD
授权
独家
立即下载
收藏
分享
举报
相关推荐
综合
墙面节点
背景墙节点
轻钢龙骨隔墙
壁龛节点
隔音墙节点