CAD频道
CAD图库
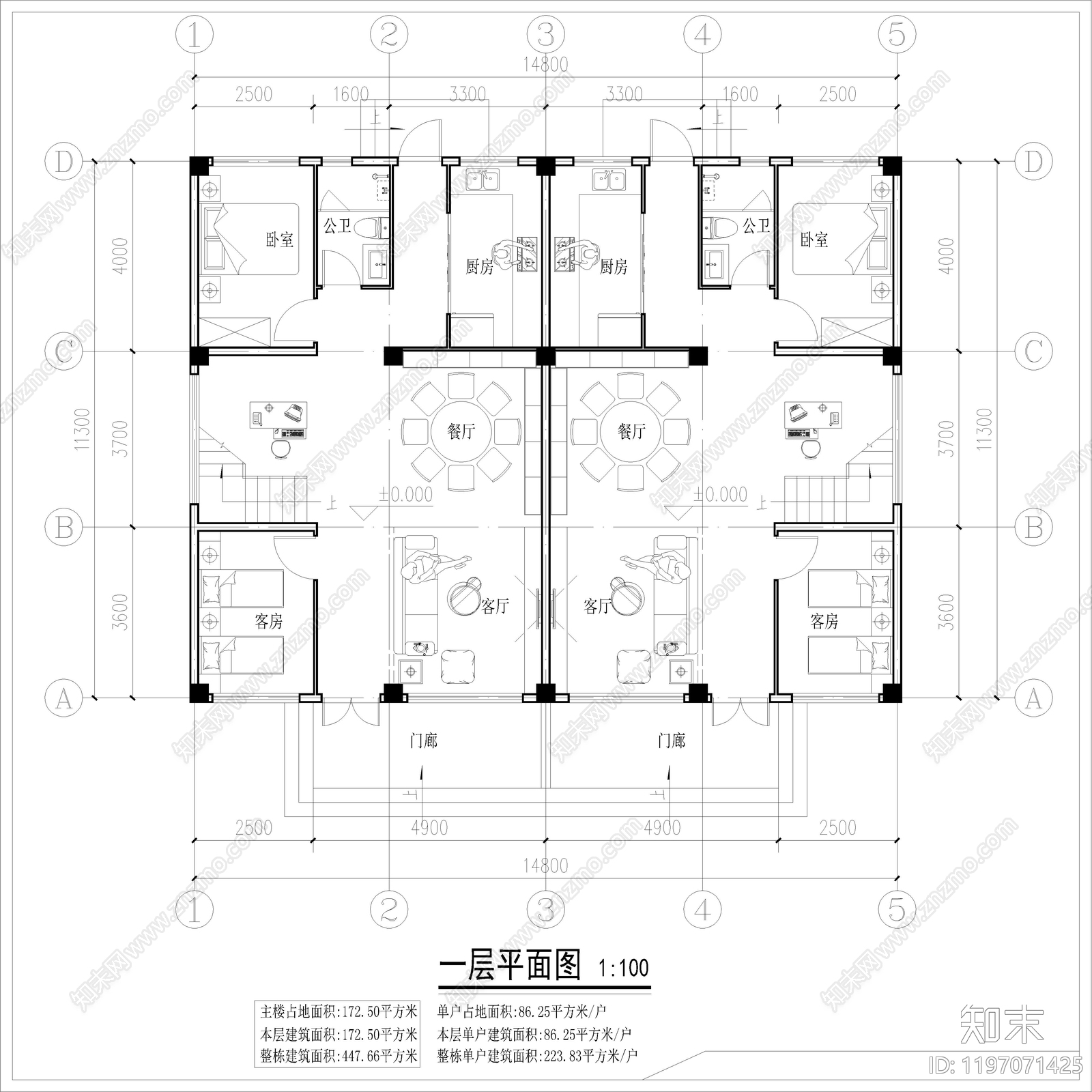
现代别墅建筑 三层双拼别墅平面 自建房平面 单户占地86平 单户面积22...
1/
3
Previous
Next
现代别墅建筑CAD下载
ID: 1197071425
复制
上传作者
北辙伏地
上传时间
2025-05-28
文件大小
1.62M
设计风格:
--
CAD版本:
CAD2004
包含文件:
CAD
授权
独家
立即下载
收藏
分享
举报
相关推荐
综合
平立面系统图
家装平面图
建筑平面图
平面图
立面图/剖面图