CAD频道
CAD图库
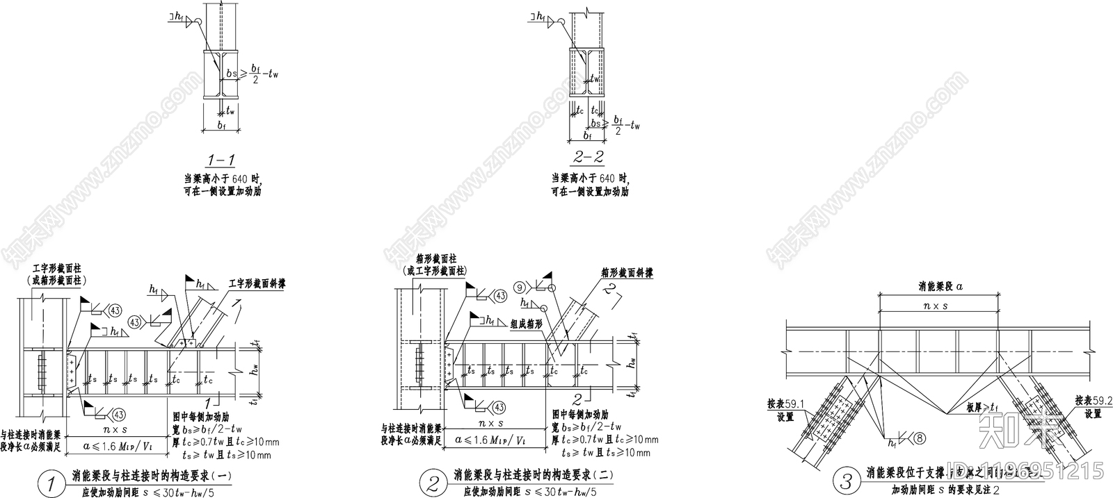
钢结构节点 钢框架梁柱 节点构造图 施工图
1/
4
Previous
Next
钢结构节点CAD下载
ID: 1196951215
复制
上传作者
03075376
上传时间
2025-05-28
文件大小
4.59M
设计风格:
--
CAD版本:
--
包含文件:
CAD
授权
独家
立即下载
收藏
分享
举报
相关推荐
综合
结构节点图
钢结构节点
桁架
混凝土节点
幕墙结构节点
转换层
其他结构设计