CAD频道
CAD图库
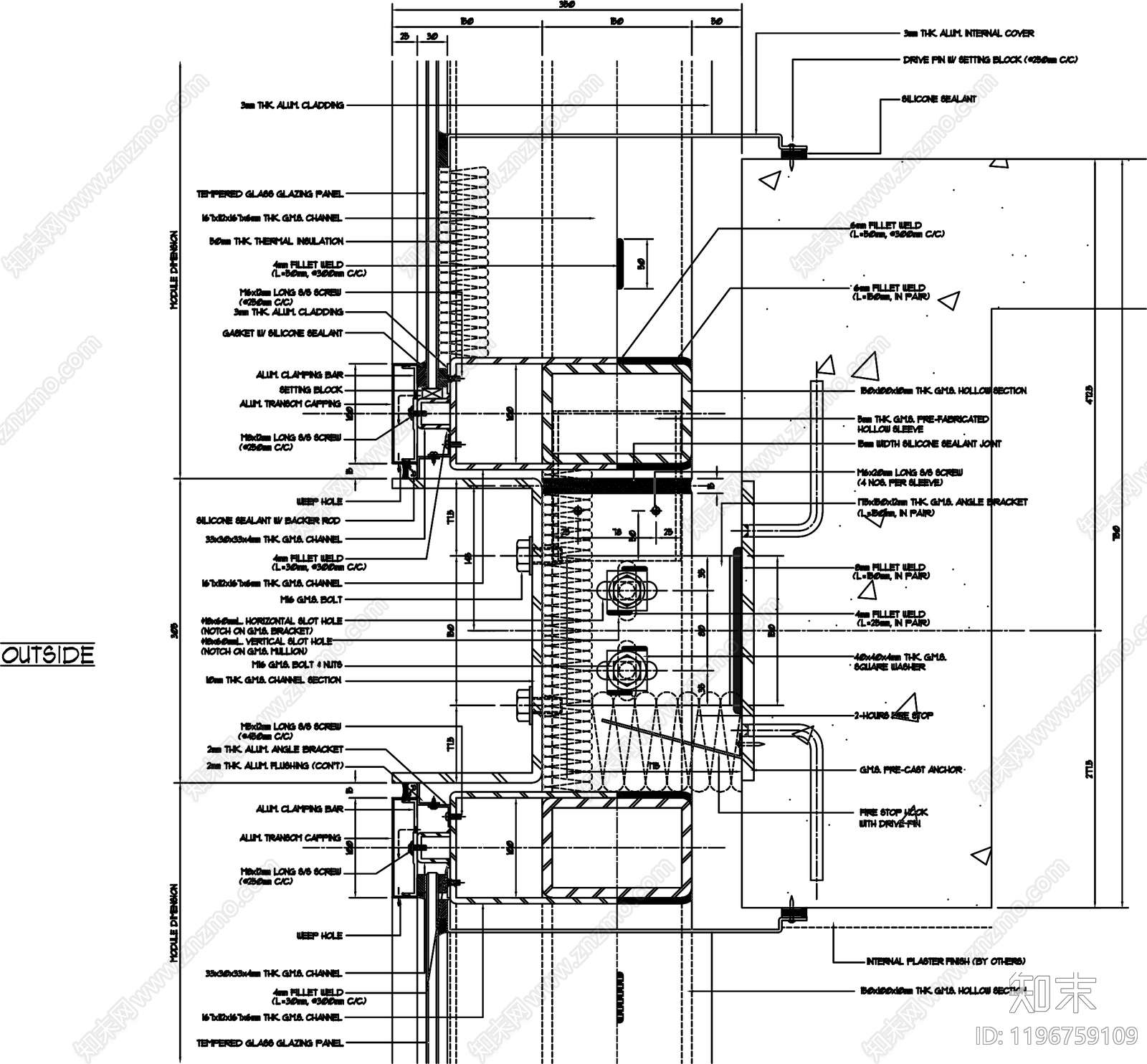
施工图 中心幕墙 节点 施工图
1/
4
Previous
Next
CADCAD下载
ID: 1196759109
复制
上传作者
用户f4c4d0
上传时间
2025-05-27
文件大小
2.36M
设计风格:
--
CAD版本:
--
包含文件:
CAD
授权
独家
立即下载
收藏
分享
举报
相关推荐
综合
结构节点图
幕墙结构节点
桁架
钢结构节点
混凝土节点
转换层
其他结构设计