CAD频道
CAD图库
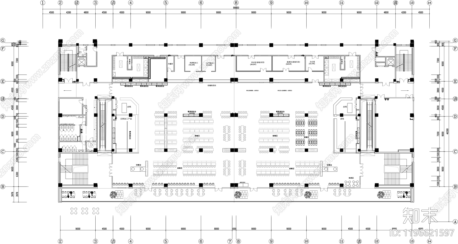
现代食堂 学校食堂设计平面 大学食堂平面图 员工餐厅平面图 施工图
现代食堂CAD下载
ID: 1196621597
复制
上传作者
用户0ebaa1
上传时间
2025-05-26
文件大小
0.4M
设计风格:
--
CAD版本:
CAD2004
包含文件:
CAD
授权
独家
立即下载
收藏
分享
举报
相关推荐
综合
餐饮空间
食堂
中餐厅
西餐厅
快餐店
自助餐厅
茶餐厅
其他餐饮空间
奶茶店
咖啡厅