
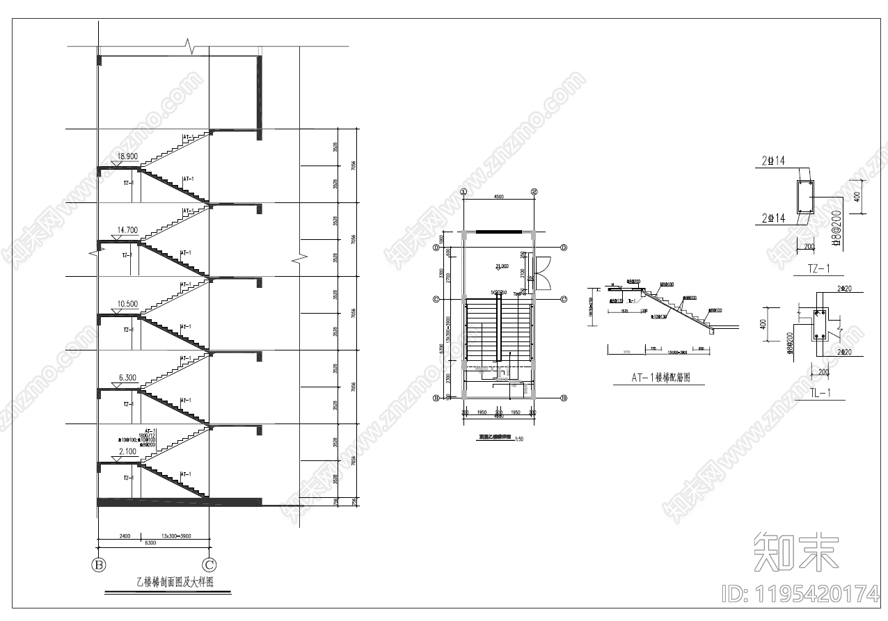
现代楼梯节点CAD下载
ID: 1195420174
复制
上传作者
打工人(互关)
打工人(互关)上传时间2025-05-16
文件大小0.16M
设计风格:--
CAD版本:CAD2014
包含文件:CAD
授权独家
立即下载
收藏
分享
举报
相关推荐
综合
节点详图
楼梯节点
吊顶节点
墙面节点
地面节点
门节点
其他节点详图
建筑工程节点
景观小品
水景

打工人(互关)上传时间2025-05-16
文件大小0.16M
设计风格:--
CAD版本:CAD2014
包含文件:CAD
授权独家