1/2


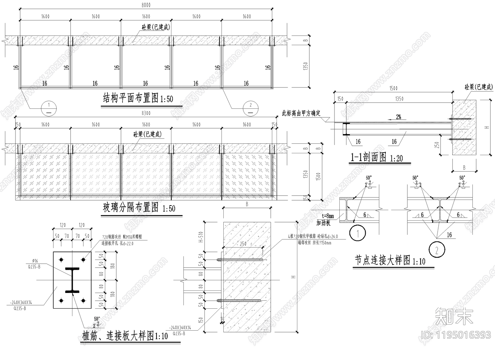
雨棚CAD下载
ID: 1195016393
复制
上传作者
74426266987
74426266987上传时间2025-05-13
文件大小0.19M
设计风格:--
CAD版本:CAD2010
包含文件:CAD
授权普通
立即下载
收藏
分享
举报
相关推荐
综合
景观小品
雨棚
亭子
廊架
景墙
综合景观小品
围墙
挡土墙
入口
景观坐凳


74426266987上传时间2025-05-13
文件大小0.19M
设计风格:--
CAD版本:CAD2010
包含文件:CAD
授权普通