CAD频道
CAD图库
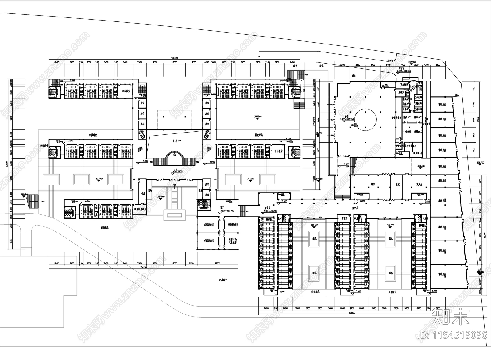
建筑平面布置图 小学教学楼建筑 施工图
1/
8
Previous
Next
建筑平面布置图CAD下载
ID: 1194513036
复制
上传作者
承诺不熬椰
上传时间
2025-05-08
文件大小
1.67M
设计风格:
--
CAD版本:
CAD2004
包含文件:
CAD
授权
独家
立即下载
收藏
分享
举报
相关推荐
综合
建筑平面图
建筑平面布置图
顶棚平面图
地面平面图
建筑改建