1/2


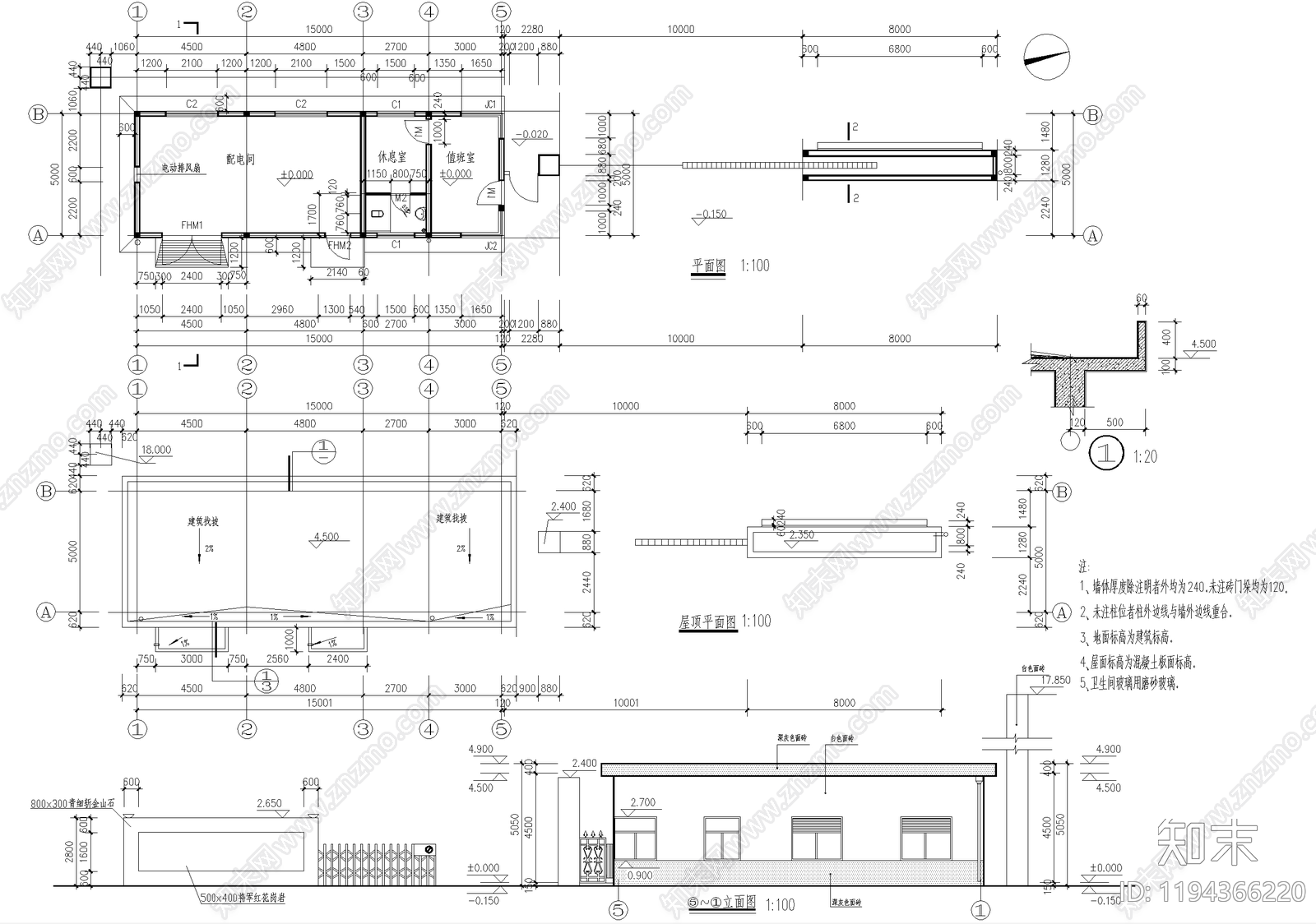
门卫室建筑CAD下载
ID: 1194366220
复制
上传作者
74426266987
74426266987上传时间2025-05-07
文件大小0.4M
设计风格:--
CAD版本:CAD2010
包含文件:CAD
授权普通
立即下载
收藏
分享
举报
相关推荐
综合
公共建筑
门卫室建筑
会议中心建筑
公厕
行政机构建筑
其他公共建筑
医院建筑
停车楼
消防站
集装箱


74426266987上传时间2025-05-07
文件大小0.4M
设计风格:--
CAD版本:CAD2010
包含文件:CAD
授权普通