
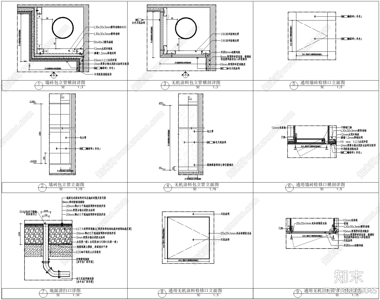
现代简约包管节点CAD下载
ID: 1193869045
复制
上传作者
AGDHHKLJK
AGDHHKLJK上传时间2025-05-02
文件大小2.17M
设计风格:--
CAD版本:CAD2004
包含文件:CAD
授权独家
立即下载
收藏
分享
举报
相关推荐
综合
节点详图
包管节点
吊顶节点
墙面节点
地面节点
门节点
其他节点详图
建筑工程节点
景观小品
楼梯节点

AGDHHKLJK上传时间2025-05-02
文件大小2.17M
设计风格:--
CAD版本:CAD2004
包含文件:CAD
授权独家