CAD频道
CAD图库
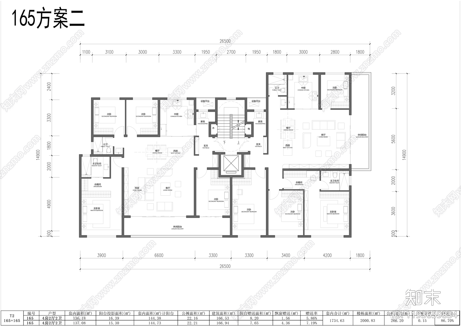
现代住宅楼建筑 T2高层住宅 165高层户型 165高层平面 高层T2户...
现代住宅楼建筑CAD下载
ID: 1193659834
复制
上传作者
互关必回
上传时间
2025-04-29
文件大小
0.34M
设计风格:
--
CAD版本:
天正CAD8.0
包含文件:
CAD
授权
独家
立即下载
收藏
分享
举报
相关推荐
综合
平立面系统图
家装平面图
建筑平面图
平面图
立面图/剖面图