CAD频道
CAD图库
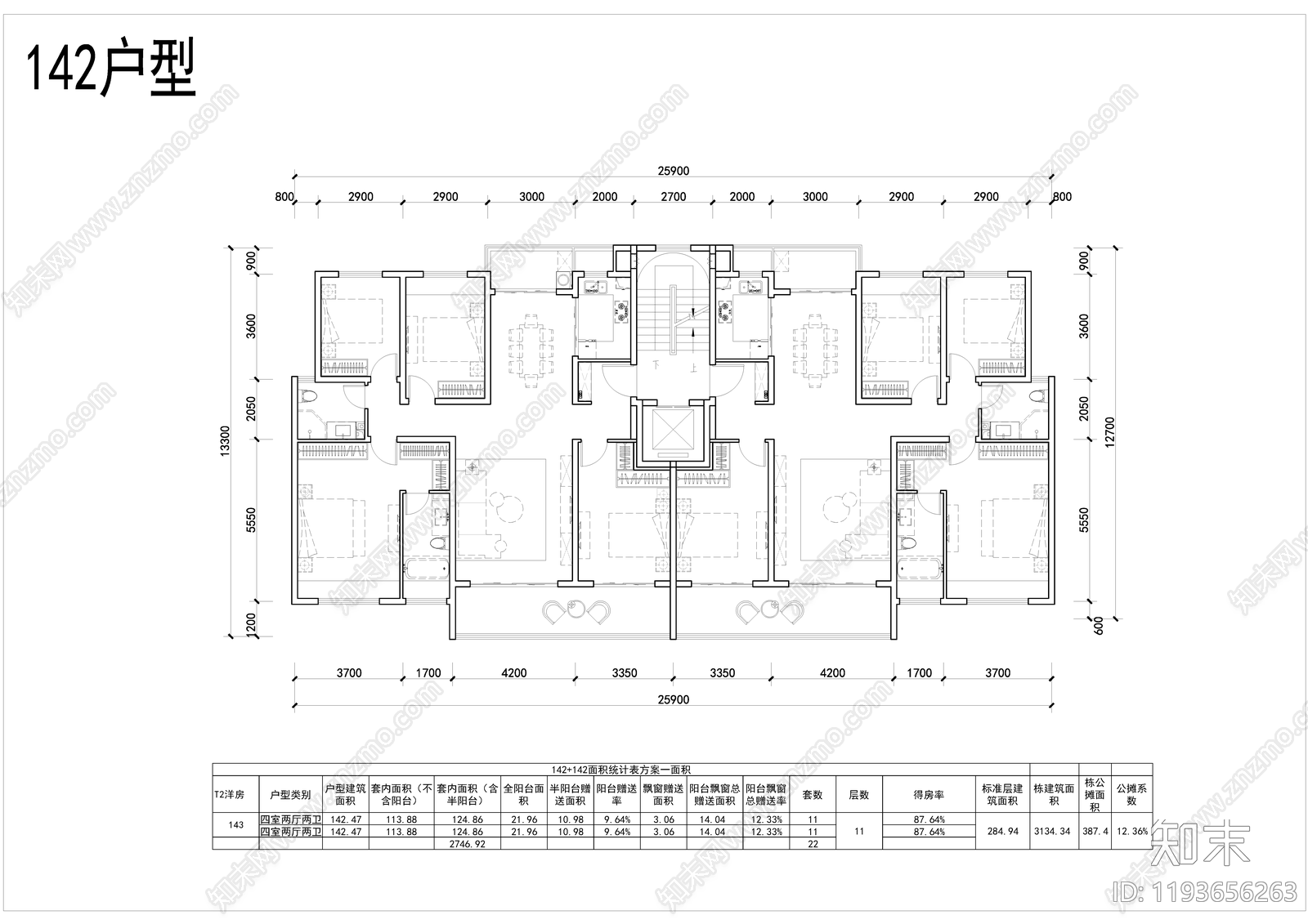
现代住宅楼建筑 T2洋房住宅 140洋房户型 现代洋房住宅平面 洋房T2...
现代住宅楼建筑CAD下载
ID: 1193656263
复制
上传作者
互关必回
上传时间
2025-04-29
文件大小
0.15M
设计风格:
--
CAD版本:
天正CAD8.0
包含文件:
CAD
授权
独家
立即下载
收藏
分享
举报
相关推荐
综合
平立面系统图
家装平面图
建筑平面图
平面图
立面图/剖面图